Prix
399 000€
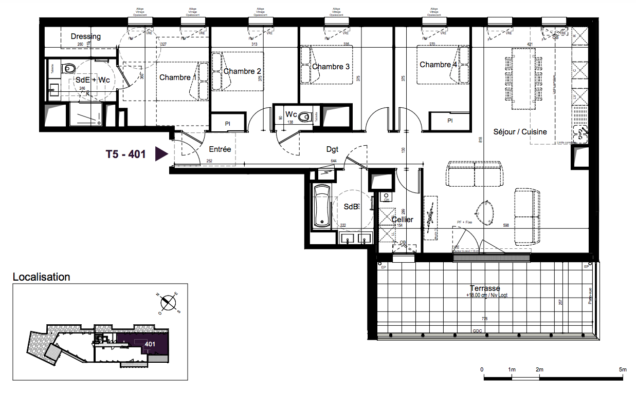
Type
Appt. au 4ème
Pièces
T5
Surface
114.5 m²
Exposition
Sud
Ville
Challans (85300)
Livraison
1er trimestre 2025
Informations
01 81 80 39 10

Présentation du programme "MAESTRIA"

Un environnement calme au sein du centre-ville de Challans.  Située à quelques minutes de la côte Atlantique et au cœur du Marais Breton, la ville de Challans allie douceur de vivre et dynamisme économique.

Autres logements T5 du programme "MAESTRIA"

Pas de logements disponibles
DO NOT CLICK