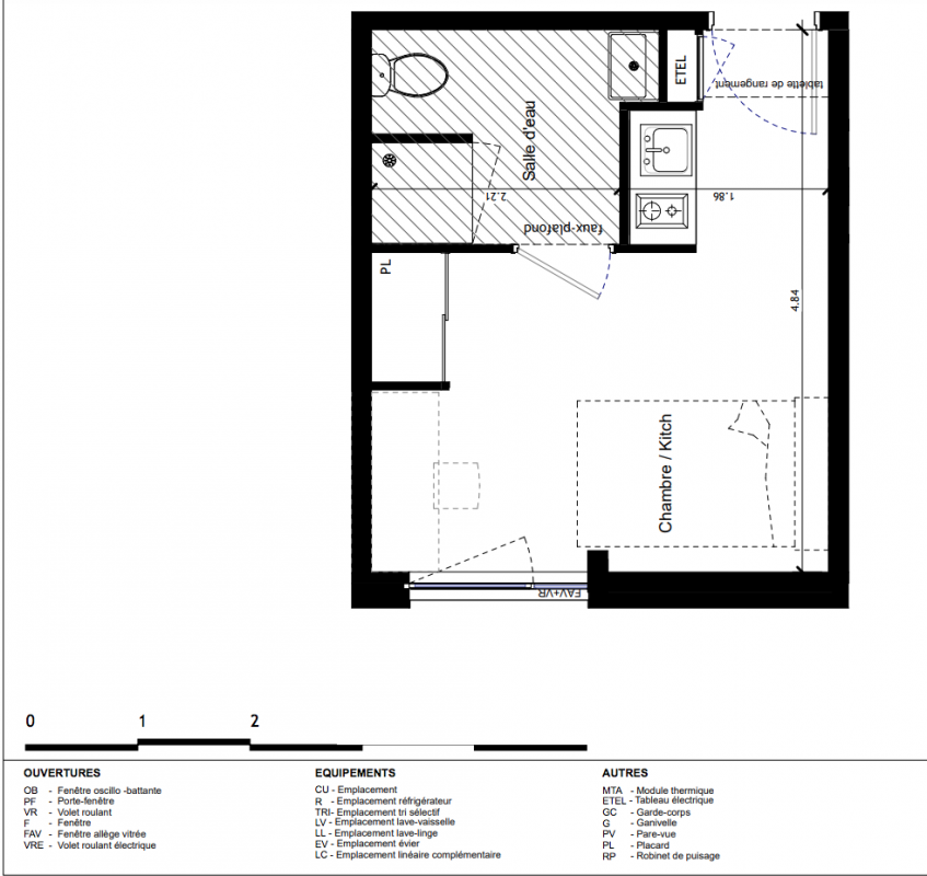
112 860€
Appt. au 5ème
Studio
19.22 m²
Sud
Angers (49000)
2ème trimestre 2029
01 81 80 39 10
Présentation du programme "STUDENT FACTORY ANGERS - MONTAIGNE"
IDÉAL INVESTISSEURS ! Profitez d’une fiscalité attractive grâce au statut LMNP, vous permettant de bénéficier de compléments de revenus et d’un investissement sécurisé dans un marché porteur !Avec ses 195 logements entièrement équipés, la résidence de services étudiante STUDENT FACTORY ANGERS - MONTAIGNE propose un lieu de vie pensé pour le bien-être et la réussite de ses occupants : espaces communs dédiés aux études, services pratiques au quotidien et lieux de convivialité favorisant les échanges. Ville universitaire majeure avec plus de 46 000 étudiants et plus de 20 établissements d’enseignement supérieur, Angers se distingue par son dynamisme, sa qualité de vie et son attractivité.Réputée pour ses espaces verts, son centre-ville animé et son réseau de transports performant, la ville offre un environnement idéal pour une vie étudiante facilitée. Idéalement située Rue Joseph Cussonneau, au cœur du nouveau Quartier Montaigne, la résidence bénéficie d’un emplacement stratégique face au tramway Montaigne et à seulement 15 min. des principaux campus et facultés. À proximité immédiate du centre commercial Espace Anjou, d’infrastructures sportives et d’espaces verts, elle offre également un accès rapide aux grands axes routiers (A87 / A11).Un environnement connecté, pratique et attractif, parfaitement adapté aux attentes des étudiants comme aux exigences des investisseurs.
Autres logements Studio du programme "STUDENT FACTORY ANGERS - MONTAIGNE"
| Disponibilité | Prix | No | Genre | Pièces | Surface | Étage | Disponibilité | Prix | ||
|---|---|---|---|---|---|---|---|---|---|---|
| Voir | Disponible | 102 791€ | LA002 | Appt. | Studio | 18.34m2 | 0-RDC | Disponible | 102 791€ | Voir |
| Voir | Disponible | 102 791€ | LA003 | Appt. | Studio | 18.34m2 | 0-RDC | Disponible | 102 791€ | Voir |
| Voir | Disponible | 102 791€ | LA004 | Appt. | Studio | 18.34m2 | 0-RDC | Disponible | 102 791€ | Voir |
| Voir | Optionné | 102 791€ | LA005 | Appt. | Studio | 18.34m2 | 0-RDC | Optionné Mais pas encore vendu 😉 | 102 791€ | Voir |
| Voir | Disponible | 102 791€ | LA006 | Appt. | Studio | 18.34m2 | 0-RDC | Disponible | 102 791€ | Voir |
| Voir | Disponible | 102 791€ | LA007 | Appt. | Studio | 18.34m2 | 0-RDC | Disponible | 102 791€ | Voir |
| Voir | Disponible | 98 040€ | LA008 | Appt. | Studio | 18.34m2 | 0-RDC | Disponible | 98 040€ | Voir |
| Voir | Disponible | 98 040€ | LA009 | Appt. | Studio | 18.34m2 | 0-RDC | Disponible | 98 040€ | Voir |
| Voir | Disponible | 98 040€ | LA010 | Appt. | Studio | 18.34m2 | 0-RDC | Disponible | 98 040€ | Voir |
| Voir | Disponible | 100 511€ | LA013 | Appt. | Studio | 18.34m2 | 0-RDC | Disponible | 100 511€ | Voir |
| Voir | Disponible | 100 511€ | LA014 | Appt. | Studio | 18.34m2 | 0-RDC | Disponible | 100 511€ | Voir |
| Voir | Disponible | 100 511€ | LA015 | Appt. | Studio | 18.34m2 | 0-RDC | Disponible | 100 511€ | Voir |
| Voir | Disponible | 95 760€ | LA016 | Appt. | Studio | 18.34m2 | 0-RDC | Disponible | 95 760€ | Voir |
| Voir | Disponible | 95 760€ | LA017 | Appt. | Studio | 18.34m2 | 0-RDC | Disponible | 95 760€ | Voir |
| Voir | Disponible | 95 760€ | LA018 | Appt. | Studio | 18.34m2 | 0-RDC | Disponible | 95 760€ | Voir |
| Voir | Disponible | 100 320€ | LA102 | Appt. | Studio | 18.34m2 | 1er | Disponible | 100 320€ | Voir |
| Voir | Disponible | 100 320€ | LA103 | Appt. | Studio | 18.34m2 | 1er | Disponible | 100 320€ | Voir |
| Voir | Disponible | 100 320€ | LA104 | Appt. | Studio | 18.34m2 | 1er | Disponible | 100 320€ | Voir |
| Voir | Disponible | 100 320€ | LA105 | Appt. | Studio | 18.34m2 | 1er | Disponible | 100 320€ | Voir |
| Voir | Disponible | 100 320€ | LA106 | Appt. | Studio | 18.34m2 | 1er | Disponible | 100 320€ | Voir |
| Voir | Disponible | 100 320€ | LA108 | Appt. | Studio | 18.34m2 | 1er | Disponible | 100 320€ | Voir |
| Voir | Disponible | 101 460€ | LA112 | Appt. | Studio | 18.34m2 | 1er | Disponible | 101 460€ | Voir |
| Voir | Disponible | 101 460€ | LA113 | Appt. | Studio | 18.34m2 | 1er | Disponible | 101 460€ | Voir |
| Voir | Disponible | 101 460€ | LA114 | Appt. | Studio | 18.34m2 | 1er | Disponible | 101 460€ | Voir |
| Voir | Disponible | 101 460€ | LA115 | Appt. | Studio | 18.34m2 | 1er | Disponible | 101 460€ | Voir |
| Voir | Disponible | 101 460€ | LA116 | Appt. | Studio | 18.34m2 | 1er | Disponible | 101 460€ | Voir |
| Voir | Disponible | 101 460€ | LA117 | Appt. | Studio | 18.34m2 | 1er | Disponible | 101 460€ | Voir |
| Voir | Disponible | 101 460€ | LA118 | Appt. | Studio | 18.34m2 | 1er | Disponible | 101 460€ | Voir |
| Voir | Disponible | 101 460€ | LA119 | Appt. | Studio | 18.34m2 | 1er | Disponible | 101 460€ | Voir |
| Voir | Disponible | 103 740€ | LA121 | Appt. | Studio | 18.34m2 | 1er | Disponible | 103 740€ | Voir |
| Voir | Disponible | 103 740€ | LA122 | Appt. | Studio | 18.34m2 | 1er | Disponible | 103 740€ | Voir |
| Voir | Disponible | 103 740€ | LA123 | Appt. | Studio | 18.34m2 | 1er | Disponible | 103 740€ | Voir |
| Voir | Disponible | 103 740€ | LA124 | Appt. | Studio | 18.34m2 | 1er | Disponible | 103 740€ | Voir |
| Voir | Disponible | 103 740€ | LA125 | Appt. | Studio | 18.34m2 | 1er | Disponible | 103 740€ | Voir |
| Voir | Disponible | 103 740€ | LA126 | Appt. | Studio | 18.34m2 | 1er | Disponible | 103 740€ | Voir |
| Voir | Disponible | 103 740€ | LA127 | Appt. | Studio | 18.34m2 | 1er | Disponible | 103 740€ | Voir |
| Voir | Disponible | 103 740€ | LA128 | Appt. | Studio | 18.34m2 | 1er | Disponible | 103 740€ | Voir |
| Voir | Disponible | 103 740€ | LA129 | Appt. | Studio | 18.34m2 | 1er | Disponible | 103 740€ | Voir |
| Voir | Disponible | 103 740€ | LA130 | Appt. | Studio | 18.34m2 | 1er | Disponible | 103 740€ | Voir |
| Voir | Disponible | 103 740€ | LA131 | Appt. | Studio | 18.34m2 | 1er | Disponible | 103 740€ | Voir |
| Voir | Disponible | 103 740€ | LA132 | Appt. | Studio | 18.72m2 | 1er | Disponible | 103 740€ | Voir |
| Voir | Disponible | 109 631€ | LA133 | Appt. | Studio | 23.03m2 Le bon plan | 1er | Disponible | 109 631€ | Voir |
| Voir | Disponible | 100 320€ | LA134 | Appt. | Studio | 18.34m2 | 1er | Disponible | 100 320€ | Voir |
| Voir | Disponible | 100 320€ | LA135 | Appt. | Studio | 18.34m2 | 1er | Disponible | 100 320€ | Voir |
| Voir | Disponible | 100 320€ | LA136 | Appt. | Studio | 18.34m2 | 1er | Disponible | 100 320€ | Voir |
| Voir | Disponible | 100 320€ | LA137 | Appt. | Studio | 18.34m2 | 1er | Disponible | 100 320€ | Voir |
| Voir | Disponible | 100 320€ | LA138 | Appt. | Studio | 18.34m2 | 1er | Disponible | 100 320€ | Voir |
| Voir | Disponible | 100 320€ | LA139 | Appt. | Studio | 18.34m2 | 1er | Disponible | 100 320€ | Voir |
| Voir | Disponible | 100 320€ | LA140 | Appt. | Studio | 18.34m2 | 1er | Disponible | 100 320€ | Voir |
| Voir | Disponible | 100 320€ | LA141 | Appt. | Studio | 18.34m2 | 1er | Disponible | 100 320€ | Voir |
| Voir | Disponible | 103 740€ | LA202 | Appt. | Studio | 18.34m2 | 2ème | Disponible | 103 740€ | Voir |
| Voir | Disponible | 103 740€ | LA203 | Appt. | Studio | 18.34m2 | 2ème | Disponible | 103 740€ | Voir |
| Voir | Disponible | 103 740€ | LA204 | Appt. | Studio | 18.34m2 | 2ème | Disponible | 103 740€ | Voir |
| Voir | Disponible | 103 740€ | LA205 | Appt. | Studio | 18.34m2 | 2ème | Disponible | 103 740€ | Voir |
| Voir | Disponible | 103 740€ | LA206 | Appt. | Studio | 18.34m2 | 2ème | Disponible | 103 740€ | Voir |
| Voir | Disponible | 103 740€ | LA207 | Appt. | Studio | 18.34m2 | 2ème | Disponible | 103 740€ | Voir |
| Voir | Disponible | 103 740€ | LA208 | Appt. | Studio | 18.34m2 | 2ème | Disponible | 103 740€ | Voir |
| Voir | Disponible | 99 180€ | LA209 | Appt. | Studio | 17.88m2 | 2ème | Disponible | 99 180€ | Voir |
| Voir | Disponible | 106 211€ | LA210 | Appt. | Studio | 21.42m2 | 2ème | Disponible | 106 211€ | Voir |
| Voir | Disponible | 104 880€ | LA211 | Appt. | Studio | 18.02m2 | 2ème | Disponible | 104 880€ | Voir |
| Voir | Disponible | 104 880€ | LA212 | Appt. | Studio | 18.34m2 | 2ème | Disponible | 104 880€ | Voir |
| Voir | Disponible | 104 880€ | LA213 | Appt. | Studio | 18.34m2 | 2ème | Disponible | 104 880€ | Voir |
| Voir | Disponible | 104 880€ | LA214 | Appt. | Studio | 18.34m2 | 2ème | Disponible | 104 880€ | Voir |
| Voir | Disponible | 104 880€ | LA215 | Appt. | Studio | 18.34m2 | 2ème | Disponible | 104 880€ | Voir |
| Voir | Disponible | 104 880€ | LA216 | Appt. | Studio | 18.34m2 | 2ème | Disponible | 104 880€ | Voir |
| Voir | Disponible | 104 880€ | LA217 | Appt. | Studio | 18.34m2 | 2ème | Disponible | 104 880€ | Voir |
| Voir | Disponible | 104 880€ | LA218 | Appt. | Studio | 18.34m2 | 2ème | Disponible | 104 880€ | Voir |
| Voir | Disponible | 104 880€ | LA219 | Appt. | Studio | 18.34m2 | 2ème | Disponible | 104 880€ | Voir |
| Voir | Disponible | 108 491€ | LA220 | Appt. | Studio | 19.22m2 | 2ème | Disponible | 108 491€ | Voir |
| Voir | Disponible | 106 020€ | LA221 | Appt. | Studio | 18.34m2 | 2ème | Disponible | 106 020€ | Voir |
| Voir | Disponible | 106 020€ | LA223 | Appt. | Studio | 18.34m2 | 2ème | Disponible | 106 020€ | Voir |
| Voir | Disponible | 106 020€ | LA224 | Appt. | Studio | 18.34m2 | 2ème | Disponible | 106 020€ | Voir |
| Voir | Disponible | 106 020€ | LA225 | Appt. | Studio | 18.34m2 | 2ème | Disponible | 106 020€ | Voir |
| Voir | Disponible | 106 020€ | LA226 | Appt. | Studio | 18.34m2 | 2ème | Disponible | 106 020€ | Voir |
| Voir | Disponible | 106 020€ | LA227 | Appt. | Studio | 18.34m2 | 2ème | Disponible | 106 020€ | Voir |
| Voir | Disponible | 106 020€ | LA228 | Appt. | Studio | 18.34m2 | 2ème | Disponible | 106 020€ | Voir |
| Voir | Disponible | 106 020€ | LA229 | Appt. | Studio | 18.34m2 | 2ème | Disponible | 106 020€ | Voir |
| Voir | Disponible | 106 020€ | LA230 | Appt. | Studio | 18.34m2 | 2ème | Disponible | 106 020€ | Voir |
| Voir | Disponible | 106 020€ | LA231 | Appt. | Studio | 18.34m2 | 2ème | Disponible | 106 020€ | Voir |
| Voir | Disponible | 106 020€ | LA232 | Appt. | Studio | 18.72m2 | 2ème | Disponible | 106 020€ | Voir |
| Voir | Disponible | 111 911€ | LA233 | Appt. | Studio | 23.04m2 | 2ème | Disponible | 111 911€ | Voir |
| Voir | Disponible | 102 600€ | LA234 | Appt. | Studio | 18.34m2 | 2ème | Disponible | 102 600€ | Voir |
| Voir | Disponible | 102 600€ | LA235 | Appt. | Studio | 18.34m2 | 2ème | Disponible | 102 600€ | Voir |
| Voir | Disponible | 102 600€ | LA236 | Appt. | Studio | 18.34m2 | 2ème | Disponible | 102 600€ | Voir |
| Voir | Disponible | 102 600€ | LA237 | Appt. | Studio | 18.34m2 | 2ème | Disponible | 102 600€ | Voir |
| Voir | Disponible | 102 600€ | LA238 | Appt. | Studio | 18.34m2 | 2ème | Disponible | 102 600€ | Voir |
| Voir | Disponible | 102 600€ | LA239 | Appt. | Studio | 18.34m2 | 2ème | Disponible | 102 600€ | Voir |
| Voir | Disponible | 102 600€ | LA240 | Appt. | Studio | 18.34m2 | 2ème | Disponible | 102 600€ | Voir |
| Voir | Disponible | 102 600€ | LA241 | Appt. | Studio | 18.34m2 | 2ème | Disponible | 102 600€ | Voir |
| Voir | Disponible | 103 931€ | LA242 | Appt. | Studio | 21.22m2 | 2ème | Disponible | 103 931€ | Voir |
| Voir | Disponible | 106 211€ | LA301 | Appt. | Studio | 22.09m2 | 3ème | Disponible | 106 211€ | Voir |
| Voir | Disponible | 106 020€ | LA302 | Appt. | Studio | 18.34m2 | 3ème | Disponible | 106 020€ | Voir |
| Voir | Disponible | 106 020€ | LA303 | Appt. | Studio | 18.34m2 | 3ème | Disponible | 106 020€ | Voir |
| Voir | Disponible | 106 020€ | LA304 | Appt. | Studio | 18.34m2 | 3ème | Disponible | 106 020€ | Voir |
| Voir | Disponible | 106 020€ | LA305 | Appt. | Studio | 18.34m2 | 3ème | Disponible | 106 020€ | Voir |
| Voir | Disponible | 106 020€ | LA306 | Appt. | Studio | 18.34m2 | 3ème | Disponible | 106 020€ | Voir |
| Voir | Disponible | 106 020€ | LA307 | Appt. | Studio | 18.34m2 | 3ème | Disponible | 106 020€ | Voir |
| Voir | Disponible | 106 020€ | LA308 | Appt. | Studio | 18.34m2 | 3ème | Disponible | 106 020€ | Voir |
| Voir | Disponible | 101 460€ | LA309 | Appt. | Studio | 17.88m2 | 3ème | Disponible | 101 460€ | Voir |
| Voir | Disponible | 108 491€ | LA310 | Appt. | Studio | 21.42m2 | 3ème | Disponible | 108 491€ | Voir |
| Voir | Disponible | 107 160€ | LA311 | Appt. | Studio | 18.02m2 | 3ème | Disponible | 107 160€ | Voir |
| Voir | Disponible | 107 160€ | LA312 | Appt. | Studio | 18.34m2 | 3ème | Disponible | 107 160€ | Voir |
| Voir | Disponible | 107 160€ | LA313 | Appt. | Studio | 18.34m2 | 3ème | Disponible | 107 160€ | Voir |
| Voir | Disponible | 107 160€ | LA314 | Appt. | Studio | 18.34m2 | 3ème | Disponible | 107 160€ | Voir |
| Voir | Disponible | 107 160€ | LA315 | Appt. | Studio | 18.34m2 | 3ème | Disponible | 107 160€ | Voir |
| Voir | Disponible | 107 160€ | LA316 | Appt. | Studio | 18.34m2 | 3ème | Disponible | 107 160€ | Voir |
| Voir | Disponible | 107 160€ | LA317 | Appt. | Studio | 18.34m2 | 3ème | Disponible | 107 160€ | Voir |
| Voir | Disponible | 107 160€ | LA318 | Appt. | Studio | 18.34m2 | 3ème | Disponible | 107 160€ | Voir |
| Voir | Disponible | 107 160€ | LA319 | Appt. | Studio | 18.34m2 | 3ème | Disponible | 107 160€ | Voir |
| Voir | Disponible | 106 020€ | LA320 | Appt. | Studio | 19.22m2 | 3ème | Disponible | 106 020€ | Voir |
| Voir | Disponible | 108 300€ | LA321 | Appt. | Studio | 18.34m2 | 3ème | Disponible | 108 300€ | Voir |
| Voir | Disponible | 108 300€ | LA322 | Appt. | Studio | 18.34m2 | 3ème | Disponible | 108 300€ | Voir |
| Voir | Disponible | 108 300€ | LA323 | Appt. | Studio | 18.34m2 | 3ème | Disponible | 108 300€ | Voir |
| Voir | Disponible | 108 300€ | LA324 | Appt. | Studio | 18.34m2 | 3ème | Disponible | 108 300€ | Voir |
| Voir | Disponible | 108 300€ | LA325 | Appt. | Studio | 18.34m2 | 3ème | Disponible | 108 300€ | Voir |
| Voir | Disponible | 108 300€ | LA326 | Appt. | Studio | 18.34m2 | 3ème | Disponible | 108 300€ | Voir |
| Voir | Disponible | 108 300€ | LA327 | Appt. | Studio | 18.34m2 | 3ème | Disponible | 108 300€ | Voir |
| Voir | Disponible | 108 300€ | LA328 | Appt. | Studio | 18.34m2 | 3ème | Disponible | 108 300€ | Voir |
| Voir | Disponible | 108 300€ | LA329 | Appt. | Studio | 18.34m2 | 3ème | Disponible | 108 300€ | Voir |
| Voir | Disponible | 108 300€ | LA330 | Appt. | Studio | 18.34m2 | 3ème | Disponible | 108 300€ | Voir |
| Voir | Disponible | 108 300€ | LA331 | Appt. | Studio | 18.34m2 | 3ème | Disponible | 108 300€ | Voir |
| Voir | Disponible | 108 300€ | LA332 | Appt. | Studio | 18.72m2 | 3ème | Disponible | 108 300€ | Voir |
| Voir | Optionné | 113 051€ | LA333 | Appt. | Studio | 23.03m2 | 3ème | Optionné Mais pas encore vendu 😉 | 113 051€ | Voir |
| Voir | Disponible | 104 880€ | LA334 | Appt. | Studio | 18.34m2 | 3ème | Disponible | 104 880€ | Voir |
| Voir | Disponible | 104 880€ | LA335 | Appt. | Studio | 18.34m2 | 3ème | Disponible | 104 880€ | Voir |
| Voir | Disponible | 104 880€ | LA336 | Appt. | Studio | 18.34m2 | 3ème | Disponible | 104 880€ | Voir |
| Voir | Disponible | 104 880€ | LA337 | Appt. | Studio | 18.34m2 | 3ème | Disponible | 104 880€ | Voir |
| Voir | Disponible | 104 880€ | LA338 | Appt. | Studio | 18.34m2 | 3ème | Disponible | 104 880€ | Voir |
| Voir | Disponible | 104 880€ | LA339 | Appt. | Studio | 18.34m2 | 3ème | Disponible | 104 880€ | Voir |
| Voir | Disponible | 104 880€ | LA340 | Appt. | Studio | 18.34m2 | 3ème | Disponible | 104 880€ | Voir |
| Voir | Disponible | 104 880€ | LA341 | Appt. | Studio | 18.34m2 | 3ème | Disponible | 104 880€ | Voir |
| Voir | Optionné | 106 211€ | LA342 | Appt. | Studio | 21.22m2 | 3ème | Optionné Mais pas encore vendu 😉 | 106 211€ | Voir |
| Voir | Disponible | 110 771€ | LA401 | Appt. | Studio | 22.09m2 | 4ème | Disponible | 110 771€ | Voir |
| Voir | Disponible | 108 300€ | LA402 | Appt. | Studio | 18.34m2 | 4ème | Disponible | 108 300€ | Voir |
| Voir | Disponible | 108 300€ | LA403 | Appt. | Studio | 18.34m2 | 4ème | Disponible | 108 300€ | Voir |
| Voir | Disponible | 108 300€ | LA404 | Appt. | Studio | 18.34m2 | 4ème | Disponible | 108 300€ | Voir |
| Voir | Disponible | 108 300€ | LA405 | Appt. | Studio | 18.34m2 | 4ème | Disponible | 108 300€ | Voir |
| Voir | Disponible | 108 300€ | LA406 | Appt. | Studio | 18.34m2 | 4ème | Disponible | 108 300€ | Voir |
| Voir | Disponible | 108 300€ | LA407 | Appt. | Studio | 18.34m2 | 4ème | Disponible | 108 300€ | Voir |
| Voir | Disponible | 108 300€ | LA408 | Appt. | Studio | 18.34m2 | 4ème | Disponible | 108 300€ | Voir |
| Voir | Disponible | 103 740€ | LA409 | Appt. | Studio | 17.88m2 | 4ème | Disponible | 103 740€ | Voir |
| Voir | Disponible | 109 631€ | LA410 | Appt. | Studio | 21.42m2 | 4ème | Disponible | 109 631€ | Voir |
| Voir | Disponible | 109 440€ | LA411 | Appt. | Studio | 18.02m2 | 4ème | Disponible | 109 440€ | Voir |
| Voir | Disponible | 109 440€ | LA412 | Appt. | Studio | 18.34m2 | 4ème | Disponible | 109 440€ | Voir |
| Voir | Disponible | 109 440€ | LA413 | Appt. | Studio | 18.34m2 | 4ème | Disponible | 109 440€ | Voir |
| Voir | Disponible | 109 440€ | LA414 | Appt. | Studio | 18.34m2 | 4ème | Disponible | 109 440€ | Voir |
| Voir | Disponible | 109 440€ | LA415 | Appt. | Studio | 18.34m2 | 4ème | Disponible | 109 440€ | Voir |
| Voir | Disponible | 109 440€ | LA416 | Appt. | Studio | 18.34m2 | 4ème | Disponible | 109 440€ | Voir |
| Voir | Disponible | 109 440€ | LA417 | Appt. | Studio | 18.34m2 | 4ème | Disponible | 109 440€ | Voir |
| Voir | Disponible | 109 440€ | LA418 | Appt. | Studio | 18.34m2 | 4ème | Disponible | 109 440€ | Voir |
| Voir | Disponible | 110 580€ | LA419 | Appt. | Studio | 19.22m2 | 4ème | Disponible | 110 580€ | Voir |
| Voir | Disponible | 109 440€ | LA420 | Appt. | Studio | 17.92m2 | 4ème | Disponible | 109 440€ | Voir |
| Voir | Disponible | 109 440€ | LA421 | Appt. | Studio | 17.86m2 | 4ème | Disponible | 109 440€ | Voir |
| Voir | Disponible | 110 580€ | LA422 | Appt. | Studio | 19.22m2 | 4ème | Disponible | 110 580€ | Voir |
| Voir | Disponible | 109 440€ | LA423 | Appt. | Studio | 17.92m2 | 4ème | Disponible | 109 440€ | Voir |
| Voir | Disponible | 109 440€ | LA424 | Appt. | Studio | 17.86m2 | 4ème | Disponible | 109 440€ | Voir |
| Voir | Disponible | 110 580€ | LA425 | Appt. | Studio | 19.22m2 | 4ème | Disponible | 110 580€ | Voir |
| Voir | Disponible | 109 440€ | LA426 | Appt. | Studio | 17.92m2 | 4ème | Disponible | 109 440€ | Voir |
| Voir | Disponible | 111 911€ | LA427 | Appt. | Studio | 18.34m2 | 4ème | Disponible | 111 911€ | Voir |
| Voir | Disponible | 111 911€ | LA428 | Appt. | Studio | 18.34m2 | 4ème | Disponible | 111 911€ | Voir |
| Voir | Disponible | 111 911€ | LA429 | Appt. | Studio | 18.34m2 | 4ème | Disponible | 111 911€ | Voir |
| Voir | Disponible | 111 911€ | LA430 | Appt. | Studio | 18.34m2 | 4ème | Disponible | 111 911€ | Voir |
| Voir | Disponible | 111 911€ | LA431 | Appt. | Studio | 18.34m2 | 4ème | Disponible | 111 911€ | Voir |
| Voir | Disponible | 111 911€ | LA432 | Appt. | Studio | 18.34m2 | 4ème | Disponible | 111 911€ | Voir |
| Voir | Disponible | 111 911€ | LA433 | Appt. | Studio | 18.34m2 | 4ème | Disponible | 111 911€ | Voir |
| Voir | Disponible | 176 891€ | LA502 | Appt. | Studio | 30.6m2 | 5ème | Disponible | 176 891€ | Voir |
| Voir | Disponible | 111 720€ | LA504 | Appt. | Studio | 17.92m2 | 5ème | Disponible | 111 720€ | Voir |
| Voir | Disponible | 111 720€ | LA505 | Appt. | Studio | 17.86m2 | 5ème | Disponible | 111 720€ | Voir |
| Voir | Disponible | 112 860€ | LA506 | Appt. | Studio | 19.22m2 | 5ème | Disponible | 112 860€ | Voir |
| Voir | Disponible | 111 720€ | LA507 | Appt. | Studio | 17.92m2 | 5ème | Disponible | 111 720€ | Voir |
| Voir | Disponible | 111 720€ | LA508 | Appt. | Studio | 17.86m2 | 5ème | Disponible | 111 720€ | Voir |
| Voir | Disponible | 112 860€ | LA509 | Appt. | Studio | 19.22m2 | 5ème | Disponible | 112 860€ | Voir |
| Voir | Disponible | 111 720€ | LA510 | Appt. | Studio | 17.92m2 | 5ème | Disponible | 111 720€ | Voir |
| Voir | Disponible | 109 440€ | LA511 | Appt. | Studio | 18.34m2 | 5ème | Disponible | 109 440€ | Voir |
| Voir | Disponible | 109 440€ | LA512 | Appt. | Studio | 18.34m2 | 5ème | Disponible | 109 440€ | Voir |
| Voir | Disponible | 109 440€ | LA513 | Appt. | Studio | 18.34m2 | 5ème | Disponible | 109 440€ | Voir |
| Voir | Disponible | 109 440€ | LA514 | Appt. | Studio | 18.34m2 | 5ème | Disponible | 109 440€ | Voir |
| Voir | Disponible | 109 440€ | LA515 | Appt. | Studio | 18.34m2 | 5ème | Disponible | 109 440€ | Voir |
| Voir | Disponible | 109 440€ | LA516 | Appt. | Studio | 18.34m2 | 5ème | Disponible | 109 440€ | Voir |
| Voir | Disponible | 108 300€ | LA517 | Appt. | Studio | 18.34m2 | 5ème | Disponible | 108 300€ | Voir |
| Voir | Disponible | 116 471€ | LA518 | Appt. | Studio | 21.22m2 | 5ème | Disponible | 116 471€ | Voir |