Ce lot n’est plus disponible chez VIANOVA ou est vendu.

Vous pouvez revenir dans 24h pour vérifier le stock à jour ou contacter un conseiller Vianova pour vérifier le stock en direct.
Vous pouvez également continuer votre recherche sur notre site « ici ».

Prix
183 001€
Type
Appt. au 3ème
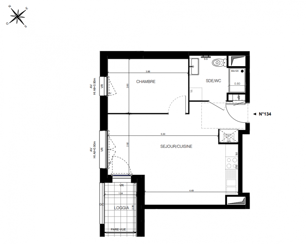
Pièces
T2
Surface
41.23 m²
Exposition
Nord
Ville
Saint-Herblain (44800)
Livraison
1er trimestre 2028
Informations
01 81 80 39 10

Présentation du programme "LES HAUTS DE CHEVERNY"

Autres logements T2 du programme "LES HAUTS DE CHEVERNY"

Pas de logements disponibles
DO NOT CLICK