Ce lot n’est plus disponible chez VIANOVA ou est vendu.

Vous pouvez revenir dans 24h pour vérifier le stock à jour ou contacter un conseiller Vianova pour vérifier le stock en direct.
Vous pouvez également continuer votre recherche sur notre site « ici ».

Prix
344 000€
Type
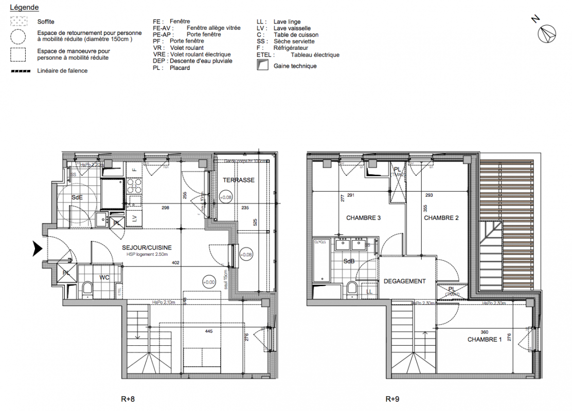
Appt. au 0-RDC
Pièces
T4
Surface
82.14 m²
Exposition
-
Ville
Nantes (44000)
Livraison
4ème trimestre 2024
Informations
01 81 80 39 10

Présentation du programme "COEUR BOISE"


Choix parmi une sélection de revêtements de sols stratifié ou souple dans les pièces de vie et les chambres
Plusieurs harmonies de faïence dans les pièces d'eau
Menuiseries mixtes en PVC et aluminium thermolaqué
Volets roulants électriques dans les séjours et cuisines
Salles de bains et salles d'eau équipées de meubles vasques avec miroirs, appliques lumineuses et sèche-serviettes électriques
Placard dans chaque entrée
Production d'eau chaude et chauffage par chaufferie bois 
Résidence sécurisée : accès Vigik et vidéophone mains-libres
Véhicules disponibles en auto-partage
Un stationnement en sous-sol par logement
Local à vélos, poussettes et trottinettes dans chaque bâtiment 
Ascenseur dans chaque bâtiment desservant le parking et les étages
Jardins engazonnés, avec haie et arbres

Autres logements T4 du programme "COEUR BOISE"

Disponibilité Prix Genre Pièces Surface Étage
Voir
Archivé
309 000€ Appt. T4 77.22m2 0-RDC
Voir
Archivé
319 000€ Appt. T4 77.22m2 0-RDC
Voir
Archivé
349 000€ Appt. T4 84.21m2 0-RDC
DO NOT CLICK