Prix
265 900€
Type
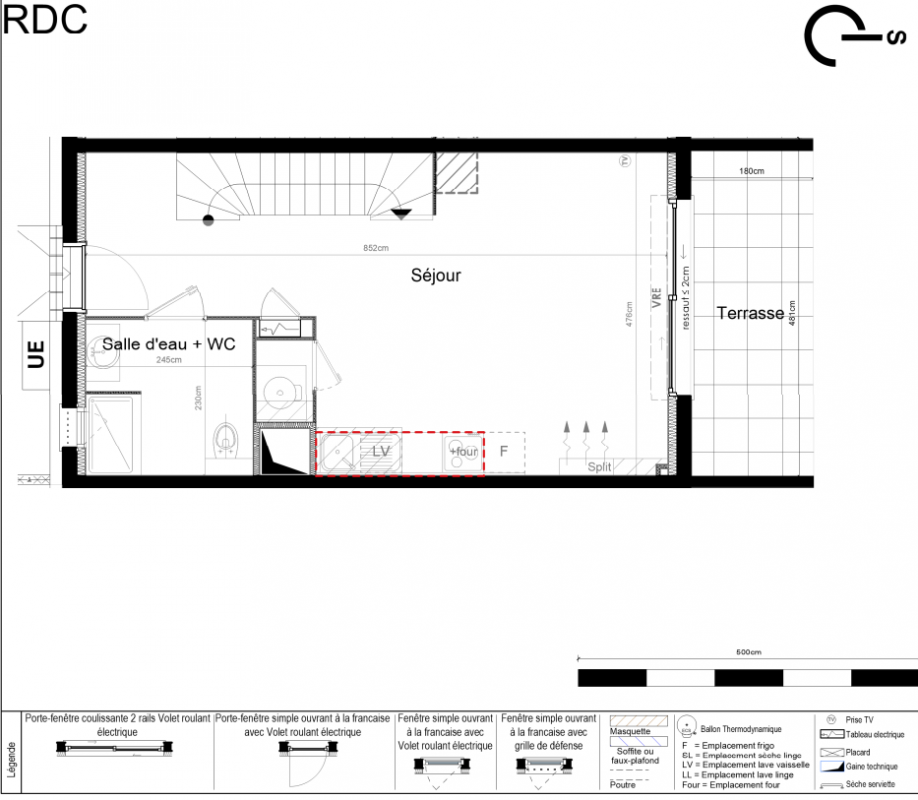
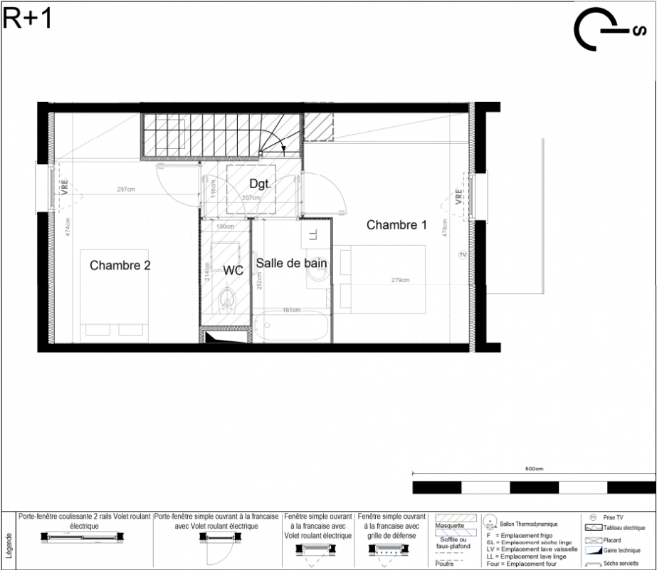
Maison au 0-RDC
Pièces
T3
Surface
71.8 m²
Exposition
-
Ville
Sauvian (34410)
Livraison
4ème trimestre 2025
Informations
01 81 80 39 10

Présentation du programme "Naturea"

Autres logements T3 du programme "Naturea"

Disponibilité Prix Genre Pièces Surface Étage
Voir
Disponible
249 900€ Appt. T3 59.6m2 1er
Voir
Disponible
265 900€ Appt. T3 65.6m2 1er
Voir
Disponible
249 900€ Appt. T3 72.1m2 2ème
Voir
Disponible
254 900€ Appt. T3 59.6m2 2ème
Voir
Optionné
254 900€ Appt. T3 72.3m2 3ème
DO NOT CLICK