Prix
233 175€  (TVA 20%)
205 000€  (TVA 5.5%)
Type
Appt. au 0-RDC
Pièces
T3
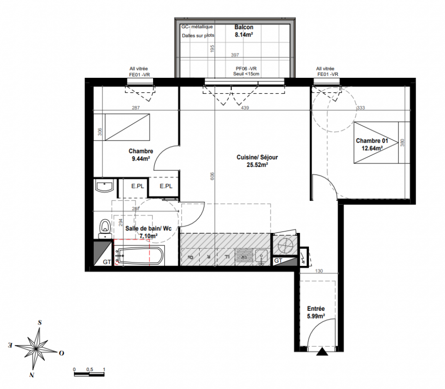
Surface
60.69 m²
Exposition
-
Ville
Montpellier (34000)
Livraison
4ème trimestre 2025
Informations
01 81 80 39 10

Présentation du programme "Le Triptyque"

EMMÉNAGEZ DÈS MAINTENANT - CUISINE OFFERTE - Le Triptyque*SITUATION ET CADRE DE VIE :- Résidence neuve idéalement située à proximité immédiate du TRAMWAY.- Accès direct à toutes les commodités : commerces, écoles et transports.- Un poumon vert en ville : 50% de la résidence est dédiée aux espaces verts.VOTRE APPARTEMENT :- Dernières opportunités du STUDIO au 3 PIÈCES (T3).- Grandes ouvertures pour un éclairage naturel optimal.- Bel espace extérieur privatif pour chaque logement (balcon ou terrasse).PLACE DE PARKING incluse pour chaque habitant.LE PLUS PIERREVAL :- DISPONIBILITÉ IMMÉDIATE : emménagez sans attendre !- CUISINE OFFERTE : installation facilitée et économies réalisées.Contactez-nous pour visiter votre futur appartement dès cette semaine ! *Voir conditions auprès de notre conseiller.

Autres logements T3 du programme "Le Triptyque"

Pas de logements disponibles
DO NOT CLICK