Prix
480 000€
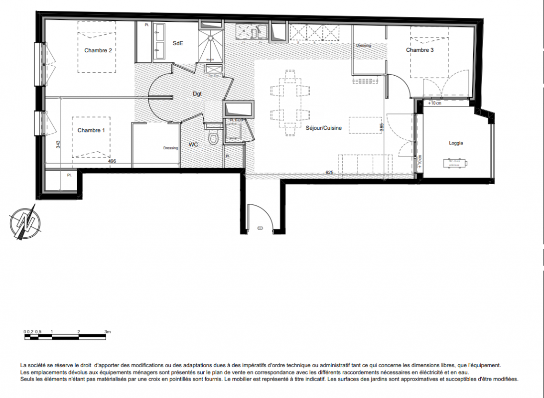
Type
Appt. au 4ème
Pièces
T4
Surface
81.92 m²
Exposition
-
Ville
Toulouse (31000)
Livraison
3ème trimestre 2027
Informations
01 81 80 39 10

Présentation du programme "L’IDYLLE"

Notre résidence l'IDYLLE est située en plein coeur de Toulouse, dans le quartier très recherché du Fer à cheval - Saint Cyprien.
Un emplacement rare à proximité immédiate de toutes commodités.
L'IDYLLE est une résidence de haut standing composée de seulement 21 logements du T2 au T5 Duplex, tous dotés d'un espace de vie extérieur.
Pensée pour les familles comme pour les jeunes actifs, les logements ont été conçu avec un vrai souci du détail pour apprécier chaque moment de vie.

Autres logements T4 du programme "L’IDYLLE"

Disponibilité Prix Genre Pièces Surface Étage
Voir
Optionné
495 000€ Appt. T4 75.63m2 5ème
DO NOT CLICK