Ce lot n’est plus disponible chez VIANOVA ou est vendu.

Vous pouvez revenir dans 24h pour vérifier le stock à jour ou contacter un conseiller Vianova pour vérifier le stock en direct.
Vous pouvez également continuer votre recherche sur notre site « ici ».

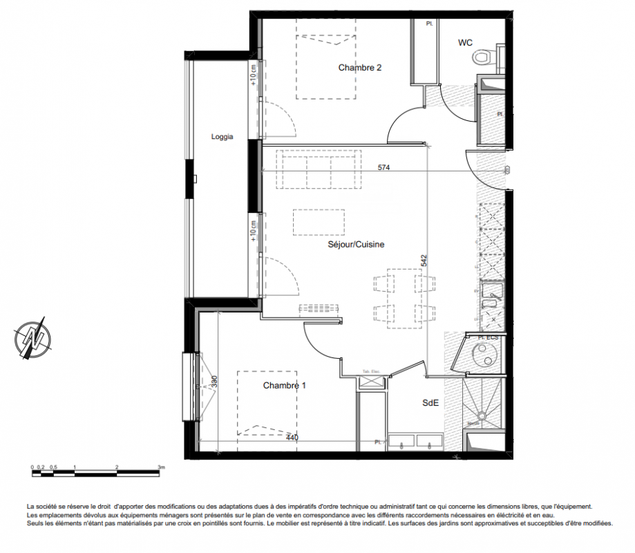
Prix
345 000€
Type
Appt. au 2ème
Pièces
T3
Surface
61.29 m²
Exposition
-
Ville
Toulouse (31000)
Livraison
3ème trimestre 2027
Informations
01 81 80 39 10

Présentation du programme "L’IDYLLE"

Notre résidence l'IDYLLE est située en plein coeur de Toulouse, dans le quartier très recherché du Fer à cheval - Saint Cyprien.
Un emplacement rare à proximité immédiate de toutes commodités.
L'IDYLLE est une résidence de haut standing composée de seulement 21 logements du T2 au T5 Duplex, tous dotés d'un espace de vie extérieur.
Pensée pour les familles comme pour les jeunes actifs, les logements ont été conçu avec un vrai souci du détail pour apprécier chaque moment de vie.

Autres logements T3 du programme "L’IDYLLE"

Disponibilité Prix Genre Pièces Surface Étage
Voir
Disponible
365 000€ Appt. T3 61.29m2 4ème
Voir
Disponible
355 000€ Appt. T3 61.29m2 3ème
Voir
Disponible
400 000€ Appt. T3 66.62m2 4ème
DO NOT CLICK