Prix
470 010€
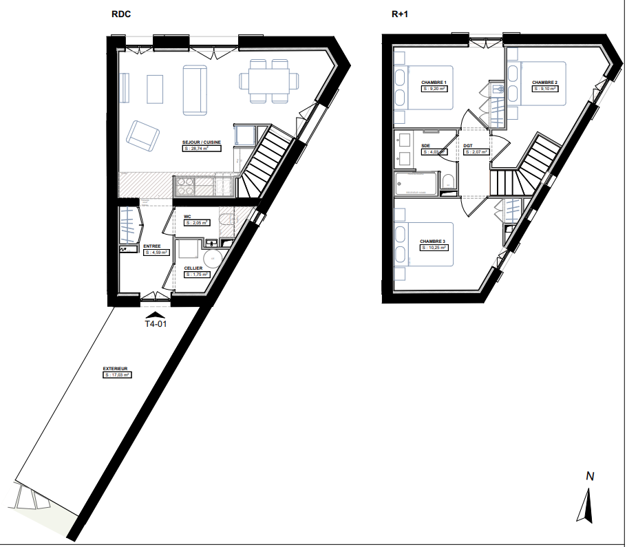
Type
Appt. au 0-RDC
Pièces
T4
Surface
71.78 m²
Exposition
Sud
Ville
Toulouse (31000)
Livraison
4ème trimestre 2026
Informations
01 81 80 39 10

Présentation du programme "LA BASTIDE DE RAMELET"

LA BASTIDE DE RAMELET est située à Toulouse à proximité immédiate de Tournefeuille, banlieue huppée de la ville. LA BASTIDE DE RAMELET bénéficie d'un environnement privilégié dans un quartier calme et arboré. Les abords immédiats de l'opération présentent de belles villas avec jardins et piscines privatives. Il n’y a aucune nuisance.
LA BASTIDE DE RAMELET a été édifiée en 1882 par la famille Lautrenc, de riches marchands qui se firent construire une Résidence d’été à quelques encablures du centre historique pour y passer la saison chaude.
LA BASTIDE DE RAMELET est un bâtiment emblématique du quartier, et dotée d’une magnifique tourelle d’inspiration néo-médiévale. L'ensemble sera entièrement restaurée sous le strict contrôle d’un Architecte du Patrimoine. La cage d’escalier monumentale et son escalier en fer forgé retrouveront leur lustre d’antan.
Les appartements du rez de chaussée jouiront tous de jardins privatifs. Partagé entre les futurs occupants, le parc classé constitue un atout rare qui offrira à cette résidence d’exception l’assurance d’une quiétude préservée.
Les travaux de rénovation de LA BASTIDE DE RAMELET seront éligibles au régime général du Déficit Foncier avec une quote part de près de 80 %.

Paramètres techniques et financiers :
- 11 lots à rénover sont proposés à la vente.
- Les typologies sont de type T1 ou T3 duplex et une maison T4 individuelle avec son jardin privatif
- Immeuble en R+3
- Balcons, terrasses tropeziennes, jardins
- Parkings
- Les surfaces des lots à rénover s'échelonnent de 30 m2 à 70 m2 environ
- Les budgets s'échelonnent de 210 000 € à 530 000 € environ avec une quote part de travaux de l'ordre de 80 %

Les honoraires de commercialisation seront à la charge de l'opérateur des travaux

Autres logements T4 du programme "LA BASTIDE DE RAMELET"

Pas de logements disponibles
DO NOT CLICK