370 000€
Appt. au 0-RDC
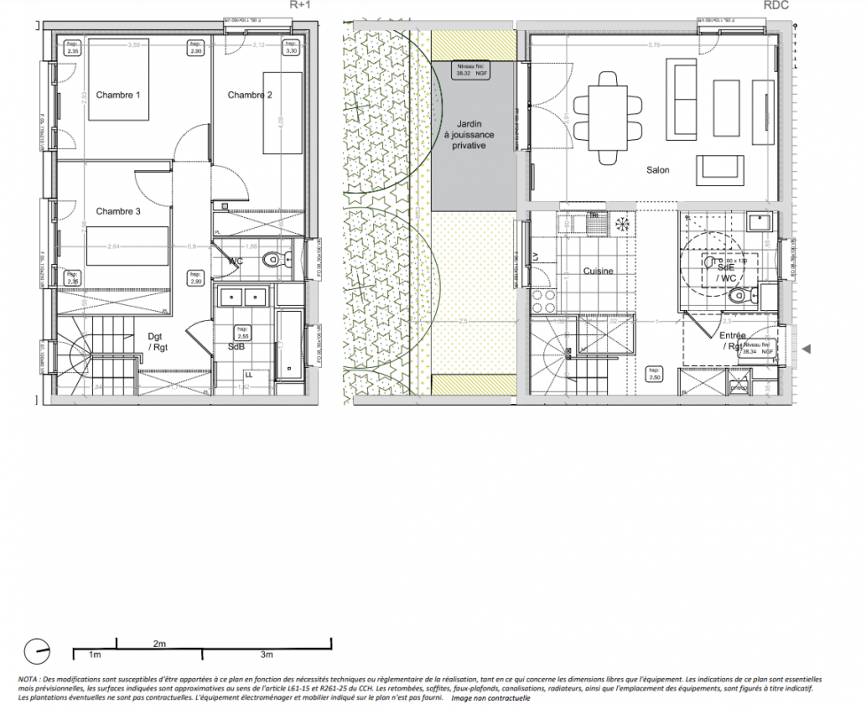
T4
85.87 m²
-
Mérignac (33700)
4ème trimestre 2027
01 81 80 39 10
Présentation du programme "HEDERA"
• 9 appartements du 2 au 3 pièces, dont certains en duplex avec mezzanine, pour une surface de vie évolutive ;
• 7 maisons familiales de 4 pièces avec jardin privatif, terrasse et agencement fonctionnel.
Chaque logement bénéficie d'une ou deux ouvertures sur l'extérieur (balcon, terrasse, loggia ou jardin), d'une entrée privative et de prestations durables : parquet stratifié, finitions soignées, équipements de qualité.
Le projet privilégie les mobilités douces avec :
• Voie réservée aux riverains et stationnement en sous-sol,
• Proximité immédiate des écoles, commerces, équipements sportifs, et transports (bus, tram, vélo en libre-service).
Vous profitez ainsi d'un quartier calme et végétalisé, idéal pour les familles comme pour les jeunes actifs en quête de confort urbain.
Autres logements T4 du programme "HEDERA"
| Disponibilité | Prix | No | Genre | Pièces | Surface | Étage | Disponibilité | Prix | ||
|---|---|---|---|---|---|---|---|---|---|---|
| Voir | Disponible | 365 000€ | M04 | Maison | T4 | 80.57m2 | 0-RDC | Disponible | 365 000€ | Voir |
| Voir | Disponible | 385 000€ | M06 | Maison | T4 | 85.59m2 | 0-RDC | Disponible | 385 000€ | Voir |
| Voir | Disponible | 410 000€ | M05 | Maison | T4 | 91.05m2 Le bon plan | 0-RDC | Disponible | 410 000€ | Voir |