Prix
226 000€  (TVA 20%)
198 692€  (TVA 5.5%)
Type
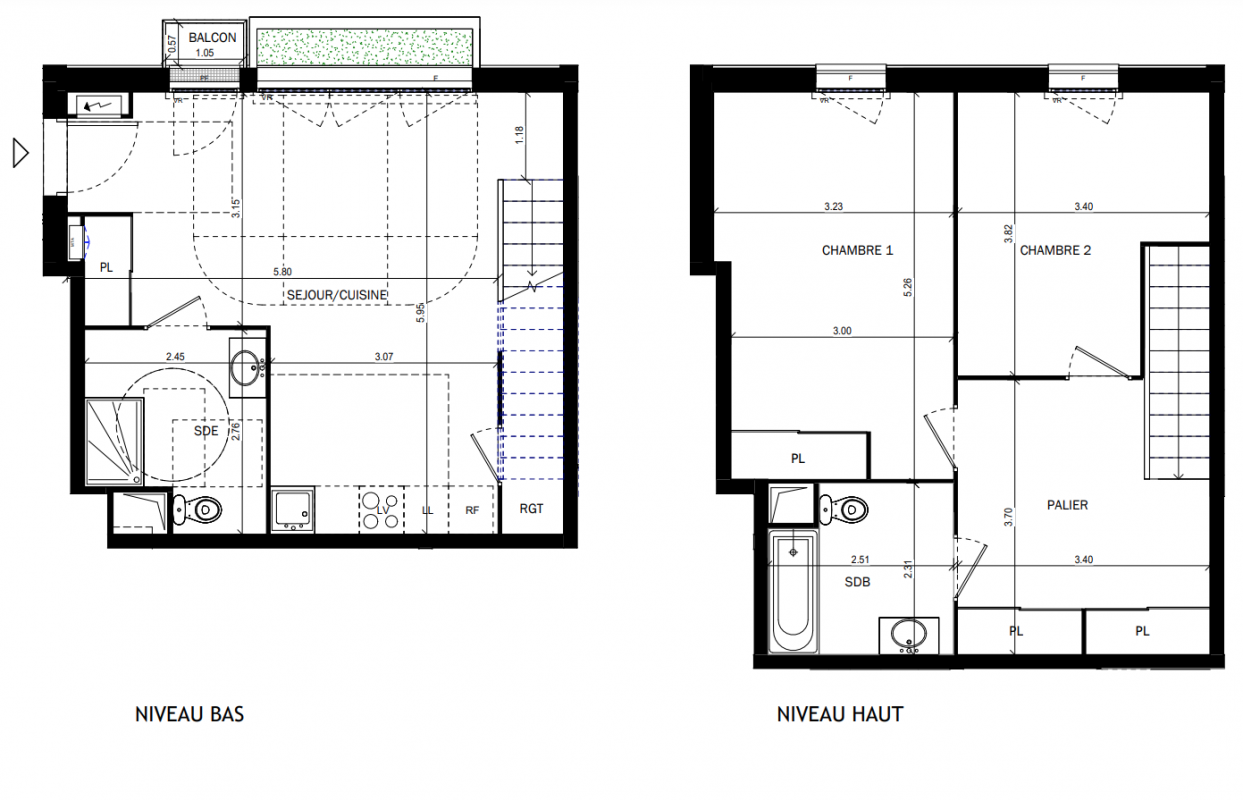
Appt. au 1er
Pièces
T3
Surface
79.41 m²
Exposition
Nord
Ville
Bordeaux (33000)
Livraison
4ème trimestre 2026
Informations
01 81 80 39 10

Présentation du programme "Andamio"

Profitez de la TVA 5,5% pour devenir propriétaire au cœur de Bordeaux-Lac
A seulement 4km de l’hypercentre de Bordeaux, au cœur du dynamique quartier Bordeaux-Lac, faites découvrir à vos clients une nouvelle résidence parfaitement implantée dans son environnement à proximité du parc des Expositions et du Palais des Congrès. Au quotidien, vous profitez en plus des nombreuses infrastructures sportives comme le Stade Matmut Atlantique, le vélodrome ou le golf. Agrémenté d’un lac artificiel avec ses plages et ses sports nautiques, ce quartier accueille de vastes espaces verts avec le Parc Floral et le Bois de Bordeaux. Ce cadre de verdure se prolonge dans la résidence grâce à une végétalisation soigneusement orchestrée avec un oasis de frênes, de cerisiers à fleurs et de magnolias. Dans cet espace verdoyant, trois bâtiments intimistes aux façades parées de structure en béton gris clair, de lasure blanche et de bardages de bois, accueillent des appartements du 2 au 4 pièces ouverts sur de beaux espaces extérieurs. Un environnement calme idéal pour investir à Bordeaux !

Autres logements T3 du programme "Andamio"

Disponibilité Prix Genre Pièces Surface Étage
Voir
Disponible
232 000€ Appt. T3 78.85m2 5ème
Voir
Disponible
274 000€ Appt. T3 79.19m2 5ème
Voir
Disponible
261 000€ Appt. T3 80.79m2 1er
DO NOT CLICK