Prix
440 000€
440 000€
Type
Appt. au 2ème
Appt. au 2ème
Pièces
T3
T3
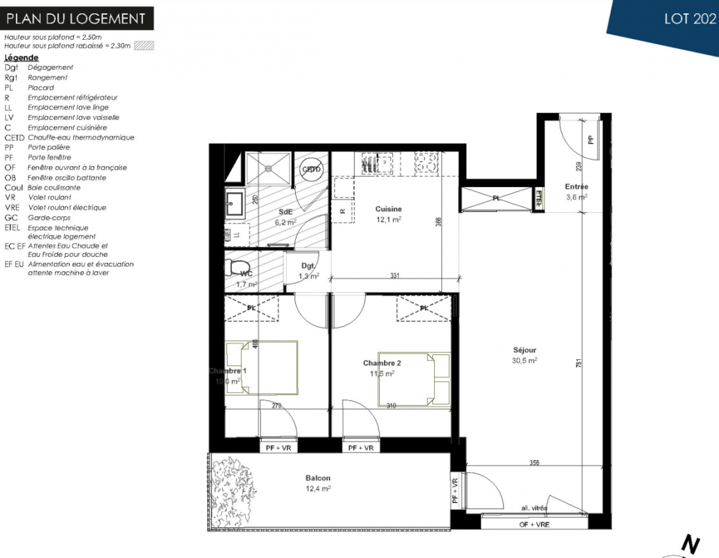
Surface
80.1 m²
80.1 m²
Exposition
-
-
Ville
La Rochelle (17000)
La Rochelle (17000)
Livraison
4ème trimestre 2027
4ème trimestre 2027
Informations
01 81 80 39 10
01 81 80 39 10
Présentation du programme "Tempo"
Tempo – Résidence neuve à La RochelleDécouvrez Tempo, une résidence élégante et conTemporaine située à seulement 2 km du centre-ville de La Rochelle. Composée de 9 logements du T2 au T5, elle offre de belles surfaces, des extérieurs privatifs (terrasses ou jardins), et un cadre paysager soigné. 2 logements premium dont un duplex avec grandes terrasses. Stationnement privatif en sous-sol, espaces verts partagés, chauffage performant et prestations de qualité. Proche transports, commerces et gare. Certification RE2020 et environnement calme à proximité immédiate des commodités.
Autres logements T3 du programme "Tempo"
| Disponibilité | Prix | No | Genre | Pièces | Surface | Étage | Disponibilité | Prix | ||
|---|---|---|---|---|---|---|---|---|---|---|
| Voir | Disponible | 370 000€ | 101 | Appt. | T3 | 62.6m2 | 1er | Disponible | 370 000€ | Voir |
| Voir | Disponible | 470 000€ | 102 | Appt. | T3 | 83.9m2 | 1er | Disponible | 470 000€ | Voir |
| Voir | Disponible | 410 000€ | 103 | Appt. | T3 | 73.5m2 | 1er | Disponible | 410 000€ | Voir |
| Voir | Disponible | 360 000€ | 201 | Appt. | T3 | 62.6m2 | 2ème | Disponible | 360 000€ | Voir |
| Voir | Disponible | 375 000€ | 301 | Appt. | T3 | 54.7m2 | 3ème | Disponible | 375 000€ | Voir |