39 900€
242 200€
- €
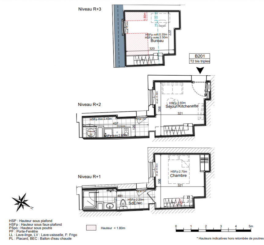
Type
Appt. au 1er
Pièces
T2
Surface
37.94 m²
Exposition
Nord
Ville
Dieppe (76200)
Livraison
4ème trimestre 2026
Informations
01 81 80 39 10

Présentation du programme "LES BALCONS DE DIEPPE"

À quelques mètres seulement de la belle église gothique Saint-Jacques et du port de Dieppe se dresse l’édifice les Balcons deDieppe. Composé de deux ensembles, l’un de brique et l’autre de pierre plus claire rappelant les falaises dieppoises, il est intégré au secteur sauvegardé de la ville. LES BALCONS DE DIEPPE proposeront 5 logements déclinés du studio au 3 pièces. Pour la plupart traversants, les futursappartements offriront à leurs habitants des volumes généreux à vivre accompagnés parfois de balcons offrant de belles vues sur l’une des places les plus emblématiques de Dieppe. Taux Malraux à 22%

Autres logements T2 du programme "LES BALCONS DE DIEPPE"

Pas de logements disponibles
DO NOT CLICK