Prix
290 047€
Type
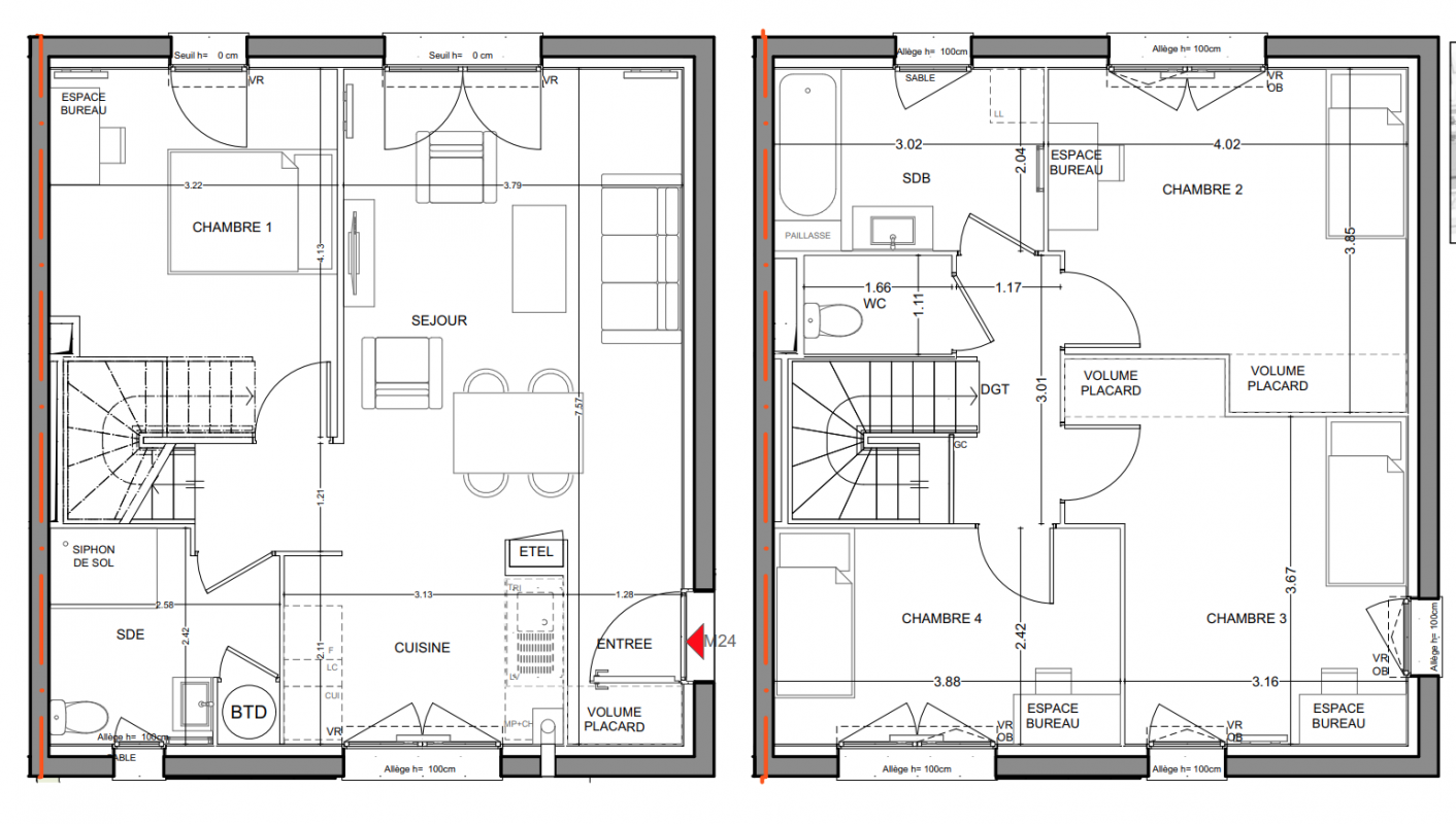
Maison au 0-RDC
Pièces
T5
Surface
97.9 m²
Exposition
Sud
Ville
Louviers (27400)
Livraison
3ème trimestre 2028
Informations
01 81 80 39 10

Présentation du programme "GREEN VALLEY PHASE 2.3"

A proximité du centre-ville de Louviers, face aux horizons boisés de la vallée de l’Eure, découvrez un nouvel environnement résidentiel empreint de nature.

Pour répondre à tous vos projets, il propose des appartements neufs du 2 au 3 pièces ainsi que des maisons neuves du 3 au 5 pièces.

Autres logements T5 du programme "GREEN VALLEY PHASE 2.3"

Disponibilité Prix Genre Pièces Surface Étage
Voir
Disponible
300 284€ Maison T5 97.9m2 0-RDC
DO NOT CLICK