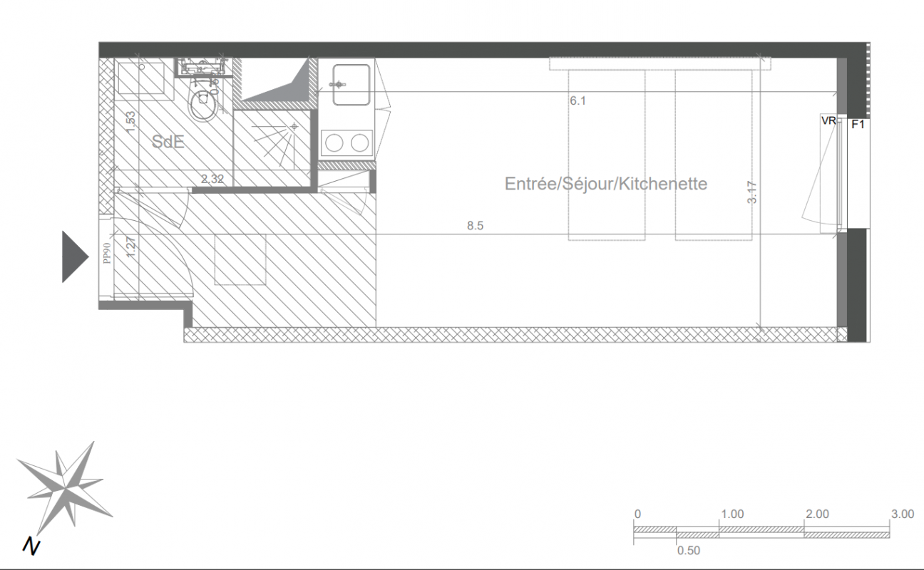
137 939€
Appt. au 0-RDC
Studio
25.39 m²
Sud-Ouest
Touques (14800)
4ème trimestre 2027
01 81 80 39 10
Présentation du programme "SYMONE Porte de Deauville"
La résidence "Symon(e) By Adonis" est située à la porte d'entrée de Deauville et Trouville et bénéficie :
- d'un accès rapide aux plages, aux casinos, hippodromes et golfs.
- de la proximité de la gare SNCF de Deauville (2 km), de l'autoroute A13/A29 (10 km) et de l'aéroport de Deauville-Normandie.
- d'un environnement à la fois urbain, touristique et naturel, à proximité du centre commercial Carrefour, de clubs de tennis, pistes cyclables et autres commodités
"Symon(e) By Adonis" n'est pas une résidence classique, mais une expérience immersive, fondée sur :
- l'art et le design : des espaces élégants, décorés avec un style contemporain et graphique.
- le jeu : playgrounds avec baby-foot, échecs, backgammon...
- lieux partagés et animation intergénérationnelle qui favorisent les interactions.
Cette résidence premium offre :
- lobby type coffee-shop, espace coworking, salle de sport connectée,
- piscine, salle de petit-déjeuner modulable, local vélos sécurisé.
- une connexion directe à la piste cyclable vers les plages.
- bowling et restaurants à proximité immédiate.
Elle s'adresse aussi bien aux touristes (couples, familles), aux voyageurs d'affaires mais aussi aux jeunes actifs, saisonniers et télétravailleurs.
Autres logements Studio du programme "SYMONE Porte de Deauville"
| Disponibilité | Prix | No | Genre | Pièces | Surface | Étage | Disponibilité | Prix | ||
|---|---|---|---|---|---|---|---|---|---|---|
| Voir | Disponible | 137 993€ | 1 | Appt. | Studio | 25.4m2 Le bon plan | 0-RDC | Disponible | 137 993€ | Voir |
| Voir | Optionné | 137 939€ | 2 | Appt. | Studio | 25.39m2 | 0-RDC | Optionné Mais pas encore vendu 😉 | 137 939€ | Voir |
| Voir | Disponible | 139 568€ | 3 | Appt. | Studio | 25.69m2 | 0-RDC | Disponible | 139 568€ | Voir |
| Voir | Disponible | 163 418€ | 4 | Appt. | Studio | 30.08m2 | 0-RDC | Disponible | 163 418€ | Voir |
| Voir | Optionné | 148 424€ | 102 | Appt. | Studio | 27.32m2 | 0-RDC | Optionné Mais pas encore vendu 😉 | 148 424€ | Voir |
| Voir | Disponible | 139 405€ | 103 | Appt. | Studio | 25.66m2 | 0-RDC | Disponible | 139 405€ | Voir |
| Voir | Optionné | 137 884€ | 104 | Appt. | Studio | 25.38m2 | 0-RDC | Optionné Mais pas encore vendu 😉 | 137 884€ | Voir |
| Voir | Disponible | 137 776€ | 105 | Appt. | Studio | 25.36m2 | 0-RDC | Disponible | 137 776€ | Voir |
| Voir | Disponible | 155 758€ | 106 | Appt. | Studio | 28.67m2 | 0-RDC | Disponible | 155 758€ | Voir |
| Voir | Optionné | 116 642€ | 108 | Appt. | Studio | 21.47m2 | 0-RDC | Optionné Mais pas encore vendu 😉 | 116 642€ | Voir |
| Voir | Disponible | 118 218€ | 109 | Appt. | Studio | 21.76m2 | 0-RDC | Disponible | 118 218€ | Voir |
| Voir | Optionné | 195 580€ | 112 | Appt. | Studio | 36m2 | 0-RDC | Optionné Mais pas encore vendu 😉 | 195 580€ | Voir |
| Voir | Disponible | 140 057€ | 113 | Appt. | Studio | 25.78m2 | 0-RDC | Disponible | 140 057€ | Voir |
| Voir | Optionné | 139 460€ | 114 | Appt. | Studio | 25.67m2 | 0-RDC | Optionné Mais pas encore vendu 😉 | 139 460€ | Voir |
| Voir | Disponible | 139 568€ | 115 | Appt. | Studio | 25.69m2 | 0-RDC | Disponible | 139 568€ | Voir |
| Voir | Disponible | 137 939€ | 116 | Appt. | Studio | 25.39m2 | 0-RDC | Disponible | 137 939€ | Voir |
| Voir | Optionné | 137 939€ | 117 | Appt. | Studio | 25.39m2 | 0-RDC | Optionné Mais pas encore vendu 😉 | 137 939€ | Voir |
| Voir | Disponible | 139 568€ | 118 | Appt. | Studio | 25.69m2 | 0-RDC | Disponible | 139 568€ | Voir |
| Voir | Optionné | 139 568€ | 119 | Appt. | Studio | 25.69m2 | 0-RDC | Optionné Mais pas encore vendu 😉 | 139 568€ | Voir |
| Voir | Disponible | 139 568€ | 120 | Appt. | Studio | 25.69m2 | 0-RDC | Disponible | 139 568€ | Voir |
| Voir | Disponible | 139 568€ | 121 | Appt. | Studio | 25.69m2 | 0-RDC | Disponible | 139 568€ | Voir |
| Voir | Optionné | 137 939€ | 122 | Appt. | Studio | 25.39m2 | 0-RDC | Optionné Mais pas encore vendu 😉 | 137 939€ | Voir |
| Voir | Disponible | 137 939€ | 123 | Appt. | Studio | 25.39m2 | 0-RDC | Disponible | 137 939€ | Voir |
| Voir | Optionné | 129 137€ | 125 | Appt. | Studio | 23.77m2 | 0-RDC | Optionné Mais pas encore vendu 😉 | 129 137€ | Voir |
| Voir | Optionné | 113 600€ | 201 | Appt. | Studio | 20.91m2 | 0-RDC | Optionné Mais pas encore vendu 😉 | 113 600€ | Voir |
| Voir | Disponible | 148 750€ | 202 | Appt. | Studio | 27.38m2 | 0-RDC | Disponible | 148 750€ | Voir |
| Voir | Optionné | 139 405€ | 203 | Appt. | Studio | 25.66m2 | 0-RDC | Optionné Mais pas encore vendu 😉 | 139 405€ | Voir |
| Voir | Disponible | 137 884€ | 204 | Appt. | Studio | 25.38m2 | 0-RDC | Disponible | 137 884€ | Voir |
| Voir | Disponible | 137 776€ | 205 | Appt. | Studio | 25.36m2 | 0-RDC | Disponible | 137 776€ | Voir |
| Voir | Disponible | 155 758€ | 206 | Appt. | Studio | 28.67m2 | 0-RDC | Disponible | 155 758€ | Voir |
| Voir | Optionné | 118 218€ | 209 | Appt. | Studio | 21.76m2 | 0-RDC | Optionné Mais pas encore vendu 😉 | 118 218€ | Voir |
| Voir | Optionné | 118 272€ | 210 | Appt. | Studio | 21.77m2 | 0-RDC | Optionné Mais pas encore vendu 😉 | 118 272€ | Voir |
| Voir | Disponible | 195 580€ | 212 | Appt. | Studio | 36m2 | 0-RDC | Disponible | 195 580€ | Voir |
| Voir | Disponible | 140 057€ | 213 | Appt. | Studio | 25.78m2 | 0-RDC | Disponible | 140 057€ | Voir |
| Voir | Disponible | 139 460€ | 214 | Appt. | Studio | 25.67m2 | 0-RDC | Disponible | 139 460€ | Voir |
| Voir | Disponible | 139 568€ | 215 | Appt. | Studio | 25.69m2 | 0-RDC | Disponible | 139 568€ | Voir |
| Voir | Disponible | 137 939€ | 216 | Appt. | Studio | 25.39m2 | 0-RDC | Disponible | 137 939€ | Voir |
| Voir | Optionné | 139 568€ | 218 | Appt. | Studio | 25.69m2 | 0-RDC | Optionné Mais pas encore vendu 😉 | 139 568€ | Voir |
| Voir | Disponible | 139 568€ | 219 | Appt. | Studio | 25.69m2 | 0-RDC | Disponible | 139 568€ | Voir |
| Voir | Optionné | 139 568€ | 220 | Appt. | Studio | 25.69m2 | 0-RDC | Optionné Mais pas encore vendu 😉 | 139 568€ | Voir |
| Voir | Disponible | 139 568€ | 221 | Appt. | Studio | 25.69m2 | 0-RDC | Disponible | 139 568€ | Voir |
| Voir | Optionné | 137 939€ | 222 | Appt. | Studio | 25.39m2 | 0-RDC | Optionné Mais pas encore vendu 😉 | 137 939€ | Voir |
| Voir | Disponible | 137 939€ | 223 | Appt. | Studio | 25.39m2 | 0-RDC | Disponible | 137 939€ | Voir |
| Voir | Disponible | 148 750€ | 302 | Appt. | Studio | 27.38m2 | 0-RDC | Disponible | 148 750€ | Voir |
| Voir | Disponible | 139 405€ | 303 | Appt. | Studio | 25.66m2 | 0-RDC | Disponible | 139 405€ | Voir |
| Voir | Optionné | 137 776€ | 305 | Appt. | Studio | 25.36m2 | 0-RDC | Optionné Mais pas encore vendu 😉 | 137 776€ | Voir |
| Voir | Optionné | 155 758€ | 306 | Appt. | Studio | 28.67m2 | 0-RDC | Optionné Mais pas encore vendu 😉 | 155 758€ | Voir |
| Voir | Optionné | 118 272€ | 310 | Appt. | Studio | 21.77m2 | 0-RDC | Optionné Mais pas encore vendu 😉 | 118 272€ | Voir |
| Voir | Disponible | 195 580€ | 312 | Appt. | Studio | 36m2 | 0-RDC | Disponible | 195 580€ | Voir |
| Voir | Disponible | 140 057€ | 313 | Appt. | Studio | 25.78m2 | 0-RDC | Disponible | 140 057€ | Voir |
| Voir | Optionné | 139 460€ | 314 | Appt. | Studio | 25.67m2 | 0-RDC | Optionné Mais pas encore vendu 😉 | 139 460€ | Voir |
| Voir | Optionné | 139 568€ | 315 | Appt. | Studio | 25.69m2 | 0-RDC | Optionné Mais pas encore vendu 😉 | 139 568€ | Voir |
| Voir | Optionné | 137 939€ | 316 | Appt. | Studio | 25.39m2 | 0-RDC | Optionné Mais pas encore vendu 😉 | 137 939€ | Voir |
| Voir | Disponible | 137 939€ | 317 | Appt. | Studio | 25.39m2 | 0-RDC | Disponible | 137 939€ | Voir |
| Voir | Disponible | 139 568€ | 318 | Appt. | Studio | 25.69m2 | 0-RDC | Disponible | 139 568€ | Voir |
| Voir | Optionné | 139 568€ | 319 | Appt. | Studio | 25.69m2 | 0-RDC | Optionné Mais pas encore vendu 😉 | 139 568€ | Voir |
| Voir | Disponible | 139 568€ | 320 | Appt. | Studio | 25.69m2 | 0-RDC | Disponible | 139 568€ | Voir |
| Voir | Disponible | 139 568€ | 321 | Appt. | Studio | 25.69m2 | 0-RDC | Disponible | 139 568€ | Voir |
| Voir | Disponible | 137 939€ | 322 | Appt. | Studio | 25.39m2 | 0-RDC | Disponible | 137 939€ | Voir |
| Voir | Disponible | 137 939€ | 323 | Appt. | Studio | 25.39m2 | 0-RDC | Disponible | 137 939€ | Voir |
| Voir | Optionné | 119 304€ | 324 | Appt. | Studio | 21.96m2 | 0-RDC | Optionné Mais pas encore vendu 😉 | 119 304€ | Voir |
| Voir | Disponible | 139 405€ | 403 | Appt. | Studio | 25.66m2 | 0-RDC | Disponible | 139 405€ | Voir |
| Voir | Disponible | 137 884€ | 404 | Appt. | Studio | 25.38m2 | 0-RDC | Disponible | 137 884€ | Voir |
| Voir | Optionné | 137 776€ | 405 | Appt. | Studio | 25.36m2 | 0-RDC | Optionné Mais pas encore vendu 😉 | 137 776€ | Voir |
| Voir | Optionné | 116 642€ | 408 | Appt. | Studio | 21.47m2 | 0-RDC | Optionné Mais pas encore vendu 😉 | 116 642€ | Voir |
| Voir | Disponible | 195 580€ | 412 | Appt. | Studio | 36m2 | 0-RDC | Disponible | 195 580€ | Voir |
| Voir | Disponible | 140 057€ | 413 | Appt. | Studio | 25.78m2 | 0-RDC | Disponible | 140 057€ | Voir |
| Voir | Disponible | 139 460€ | 414 | Appt. | Studio | 25.67m2 | 0-RDC | Disponible | 139 460€ | Voir |
| Voir | Disponible | 139 568€ | 415 | Appt. | Studio | 25.69m2 | 0-RDC | Disponible | 139 568€ | Voir |
| Voir | Disponible | 137 939€ | 416 | Appt. | Studio | 25.39m2 | 0-RDC | Disponible | 137 939€ | Voir |
| Voir | Optionné | 137 939€ | 417 | Appt. | Studio | 25.39m2 | 0-RDC | Optionné Mais pas encore vendu 😉 | 137 939€ | Voir |
| Voir | Optionné | 139 568€ | 418 | Appt. | Studio | 25.69m2 | 0-RDC | Optionné Mais pas encore vendu 😉 | 139 568€ | Voir |
| Voir | Disponible | 139 568€ | 419 | Appt. | Studio | 25.69m2 | 0-RDC | Disponible | 139 568€ | Voir |
| Voir | Disponible | 139 568€ | 420 | Appt. | Studio | 25.69m2 | 0-RDC | Disponible | 139 568€ | Voir |
| Voir | Disponible | 139 568€ | 421 | Appt. | Studio | 25.69m2 | 0-RDC | Disponible | 139 568€ | Voir |
| Voir | Disponible | 137 939€ | 422 | Appt. | Studio | 25.39m2 | 0-RDC | Disponible | 137 939€ | Voir |
| Voir | Optionné | 137 939€ | 423 | Appt. | Studio | 25.39m2 | 0-RDC | Optionné Mais pas encore vendu 😉 | 137 939€ | Voir |
| Voir | Optionné | 129 137€ | 425 | Appt. | Studio | 23.77m2 | 0-RDC | Optionné Mais pas encore vendu 😉 | 129 137€ | Voir |