Prix
166 000€
Type
Appt. au 2ème
Pièces
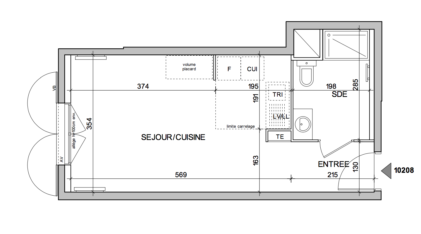
Studio
Surface
27.87 m²
Exposition
Ouest
Ville
Villennes-sur-Seine (78670)
Livraison
3ème trimestre 2028
Informations
01 81 80 39 10

Présentation du programme "SEINE DE VIES"

Niché dans l'écrin préservé de Villennes-sur-Seine, future station du RER E à 30 minutes de Paris Gare du Nord, Vianova dévoile une réalisation d'exception. Conçue comme un véritable parc habité, cette résidence marie l'élégance architecturale à de généreux espaces verts privatifs et partagés. Chaque appartement, du studio au 5 pièces, s'ouvre sur l'extérieur par un balcon, une terrasse ou un jardin. Les maisons, proposant jusqu'à 6 chambres avec garages et jardins privatifs, incarnent l'art de vivre familial. École, commerces et promenades à proximité immédiate, gare accessible en 10 minutes à vélo : tout est réuni pour une vie pratique et sereine. L'excellence Vianova s'accompagne d'une solution d'accession facilitée avec Vianova Access : un apport limité pour des mensualités proches d'un loyer, sans compromis sur la qualité.

Autres logements Studio du programme "SEINE DE VIES"

Disponibilité Prix Genre Pièces Surface Étage
Voir
Optionné
169 000€ Appt. Studio 28.67m2 3ème
Voir
Optionné
162 000€ Appt. Studio 27.87m2 1er
Voir
Disponible
170 000€ Appt. Studio 27.87m2 3ème
Voir
Disponible
189 000€ Appt. Studio 31.4m2 0-RDC
Voir
Disponible
167 000€ Appt. Studio 26.45m2 1er
Voir
Optionné
165 000€ Appt. Studio 28.67m2 2ème
DO NOT CLICK