Prix
274 692€
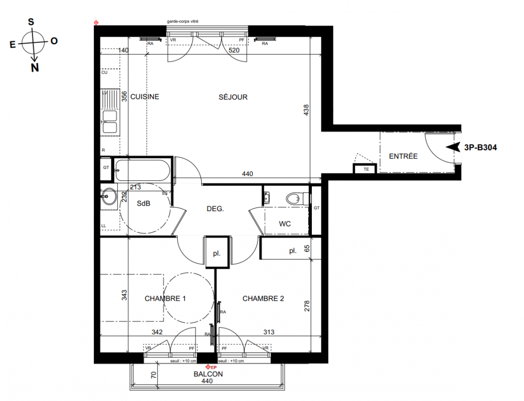
Type
Appt. au 0-RDC
Pièces
T3
Surface
64.9 m²
Exposition
Sud
Ville
Trappes (78190)
Livraison
3ème trimestre 2024
Informations
01 81 80 39 10

Présentation du programme "Villa Muralis"

Au coeur d'une ville résolument tournée vers l'avenir, "Villa Muralis" est à proximité immédiate des transports, des écoles, des commerces et de toutes les commodités.

L'opération de style contemporain, avec un coeur d'îlot paysager, propose des appartements du T1 au T4.

Chacun de ses logements offre des espaces lumineux et conviviaux. Tous les appartements s'ouvrent sur un jardin, un balcon ou une terrasse. Les derniers étages profitent quant à eux de terrasses avec vue sur le Parc Naturel de la Haute Vallée de Chevreuse.

Parmi les prestations proposées :
* Volets roulants électriques ;
* Placards équipés et aménagés ;
* Salle de bains et salles d'eau équipées de meuble vasque avec mitigeur et miroirs avec bandeaux lumineux ;
* Radiateurs sèche-serviettes dans les salles de bains et salles d'eau ;
* Parking sous-sol ;
* Hall d'entrée protégé par un sas avec digicode et interphone relié à chaque appartement ;
* Accès sécurisé par badge et visiophone ...

Autres logements T3 du programme "Villa Muralis"

Disponibilité Prix Genre Pièces Surface Étage
Voir
Optionné
262 749€ Appt. T3 62.6m2 0-RDC
Voir
Disponible
269 915€ Appt. T3 64.2m2 0-RDC
DO NOT CLICK