Prix
227 943€  (TVA 20%)
200 400€  (TVA 5.5%)
Type
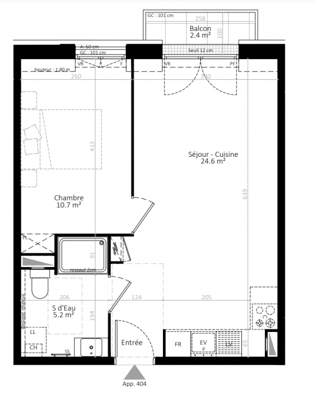
Appt. au 4ème
Pièces
T2
Surface
40.5 m²
Exposition
-
Ville
Villeneuve-Saint-Georges (94190)
Livraison
2ème trimestre 2028
Informations
01 81 80 39 10

Présentation du programme "VILLA NOVA"

Localisation et potentiel marché : Le programme VILLA NOVA est situé à Villeneuve-Saint-Georges (94), à 15 km de la porte de Bercy, dans un secteur pavillonnaire recherché, calme et verdoyant. La commune bénéficie d'une forte accessibilité vers Paris, via le RER D (station Villeneuve-Triage - Paris Gare de Lyon en moins de 25 min), la RN6 et l'A86, ainsi que d'une proximité avec l'aéroport d'Orly.

Zone à demande résidentielle soutenue, portée par les actifs franciliens et les primo-accédants recherchant des prix plus accessibles aux portes de Paris.

Description de l'opération : Résidence neuve à taille humaine de 39 logements, du 2 au 4 pièces, avec surfaces généreuses jusqu'à 80 m². Implantation entre la rue Danton et la rue Gabriel Cordier, offrant un double accès et un environnement résidentiel qualitatif, à proximité immédiate des équipements sportifs et du coeur de ville.

Programme conforme à la RE 2020, garantissant performance énergétique, charges maîtrisées et pérennité patrimoniale.

Typologies et cibles commerciales :
- 2 pièces : primo-accédants solos ou jeunes couples.
- 3 pièces : coeur de cible résidence principale.
- 4 pièces : familles primo-accédantes recherchant un premier achat durable.

Tous les logements disposent d'un balcon (jusqu'à 9 m²) et de plans optimisés avec cuisines ouvertes.

Arguments de vente clés :
- Offre neuve rare en secteur pavillonnaire.
- Forte accessibilité Paris / Orly.
- Résidence sécurisée et qualitative.
- Espaces extérieurs privatifs sur l'ensemble des logements.
- Architecture soignée, matériaux durables, image patrimoniale.
- 43 places de stationnement et local vélos.
- Équipements et prestations
- Hall d'entrée avec patio.
- Façades en pierre, lucarnes stylisées.
- Garde-corps ajourés en acier.
- Volets battants bois sur certains bâtiments.
- Jardin paysager en coeur d'îlot.
- Sécurisation complète : digicode, vidéophone, porte palière renforcée.

Contexte urbain et services :
- Commerces et services de proximité accessibles à pied.
- Écoles, collèges et lycées dans la commune.
- Marché central et équipements culturels.
- Espaces verts et berges de Seine à proximité.

Grand lancement commercial les 17 et 18 janvier 2026.

Autres logements T2 du programme "VILLA NOVA"

Disponibilité Prix Genre Pièces Surface Étage
Voir
Disponible
238 749€ Appt. T2 39.1m2 3ème
Voir
Disponible
235 905€ Appt. T2 39.2m2 2ème
Voir
Disponible
234 199€ Appt. T2 39.2m2 1er
Voir
Disponible
216 000€ Appt. T2 39.6m2 2ème
Voir
Optionné
218 275€ Appt. T2 39.6m2 3ème
Voir
Disponible
236 474€ Appt. T2 39.6m2 1er
Voir
Disponible
233 630€ Appt. T2 40.5m2 4ème
Voir
Disponible
223 393€ Appt. T2 41.4m2 2ème
Voir
Optionné
219 981€ Appt. T2 41.4m2 2ème
Voir
Disponible
225 668€ Appt. T2 41.4m2 3ème
Voir
Disponible
222 825€ Appt. T2 41.4m2 3ème
Voir
Disponible
225 100€ Appt. T2 43m2 2ème
Voir
Disponible
227 374€ Appt. T2 43m2 3ème
Voir
Disponible
216 569€ Appt. T2 43m2 0-RDC
Voir
Disponible
275 147€ Appt. T2 45.3m2 4ème
DO NOT CLICK