880 000€
Appt. au 4ème
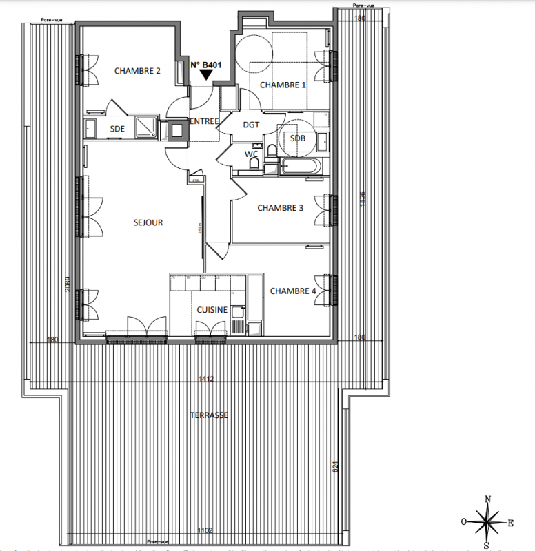
T5
111.79 m²
-
Saint-Maur-des-Fossés (94100)
4ème trimestre 2027
01 81 80 39 10
Présentation du programme "87 Bellechasse"
Un nouveau programme immobilier voit le jour à Saint-Maur-des-Fossés, porté par Emerige, Brownfields et Provini. Situé dans le quartier résidentiel d’Adamville, ce projet regroupe toutes les commodités nécessaires.Idéalement localisée à proximité de la rue Baratte Cholet, réputée pour ses boutiques et ses restaurants, la résidence bénéficie d’un environnement pratique avec un accès facile à plusieurs lignes de bus, dont l’une s’arrête au pied du bâtiment. Commerces, services, établissements scolaires et espaces verts se trouvent également à proximité.D’architecture classique et élégante, la résidence s’organise autour d’un cœur d’îlot verdoyant, offrant un cadre de vie serein et agréable.Les appartements, allant du studio au 5 pièces, disposent pour la plupart d’un balcon, d’une terrasse ou d’un jardin, et sont tous accompagnés d’une place de parking.

