Ce lot n’est plus disponible chez VIANOVA ou est vendu.

Vous pouvez revenir dans 24h pour vérifier le stock à jour ou contacter un conseiller Vianova pour vérifier le stock en direct.
Vous pouvez également continuer votre recherche sur notre site « ici ».

Prix
379 000€  (TVA 20%)
347 417€  (TVA 10%)
Type
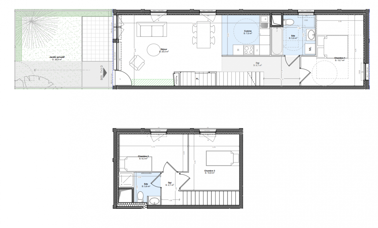
Appt. au 0-RDC
Pièces
T4
Surface
84.2 m²
Exposition
-
Ville
Orly (94310)
Livraison
3ème trimestre 2026
Informations
01 81 80 39 10

Présentation du programme "Équilibre"

Les espaces extérieurs partagés de la résidence sont également soignés. Un jardin collectif en coeur d'îlot vous invite à la détente.

Autres logements T4 du programme "Équilibre"

Disponibilité Prix Genre Pièces Surface Étage
Voir
Archivé
371 000€ Appt. T4 80m2 4ème
DO NOT CLICK