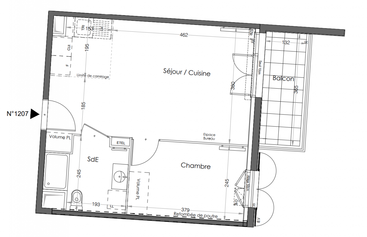
225 000€
Appt. au 2ème
T2
40.01 m²
Nord
Méry-sur-Oise (95540)
1er trimestre 2028
01 81 80 39 10
Présentation du programme "RESIDENCE MADRIA"
À Méry-sur-Oise, avec Vianova ACCESS pour la 1ère fois vous pouvez devenir propriétaire de votre appartement neuf !
Entre ancrage historique et pleine nature, découvrez une adresse à l’art de vivre parfait, au cœur d’une commune paisible des rives de l’Oise. À seulement 350 mètres de la gare et 40 minutes de Paris, votre résidence neuve marie avec finesse pierre meulière authentique et prestations contemporaines.
Son généreux domaine paysager s’articule autour d’un espace boisé classé et de vastes jardins partagés, au cœur de l’espace. Huit maisons familiales avec jardins privatifs et des appartements modulables du studio au 4 pièces offrent des espaces de vie pensés pour votre bien-être. Orientations traversantes, terrasses généreuses, suite parentale ou plan modulable: trouvez l’intérieur qui vous ressemble. L'environnement privilégié conjugue praticité urbaine et sérénité champêtre, avec commerces, école et parc du Château accessibles à pied.
Autres logements T2 du programme "RESIDENCE MADRIA"
| Disponibilité | Prix | No | Genre | Pièces | Surface | Étage | Disponibilité | Prix | ||
|---|---|---|---|---|---|---|---|---|---|---|
| Voir | Disponible | 212 000€ | 1007 | Appt. | T2 | 38.51m2 | 0-RDC | Disponible | 212 000€ | Voir |
| Voir | Disponible | 235 000€ | 1210 | Appt. | T2 | 40.01m2 | 2ème | Disponible | 235 000€ | Voir |
| Voir | Disponible | 242 000€ | 2105 | Appt. | T2 | 47.53m2 | 1er | Disponible | 242 000€ | Voir |
| Voir | Disponible | 222 000€ | 2101 | Appt. | T2 | 39.96m2 | 1er | Disponible | 222 000€ | Voir |
| Voir | Disponible | 227 000€ | 2201 | Appt. | T2 | 39.96m2 | 2ème | Disponible | 227 000€ | Voir |
| Voir | Optionné | 250 000€ | 1003 | Appt. | T2 | 41.61m2 | 0-RDC | Optionné Mais pas encore vendu 😉 | 250 000€ | Voir |
| Voir | Disponible | 217 000€ | 2109 | Appt. | T2 | 38.51m2 | 1er | Disponible | 217 000€ | Voir |
| Voir | Disponible | 238 000€ | 2110 | Appt. | T2 | 49.85m2 | 1er | Disponible | 238 000€ | Voir |
| Voir | Disponible | 215 000€ | 1008 | Appt. | T2 | 40.01m2 | 0-RDC | Disponible | 215 000€ | Voir |
| Voir | Optionné | 217 000€ | 1108 | Appt. | T2 | 38.51m2 | 1er | Optionné Mais pas encore vendu 😉 | 217 000€ | Voir |
| Voir | Disponible | 220 000€ | 1109 | Appt. | T2 | 40.01m2 | 1er | Disponible | 220 000€ | Voir |
| Voir | Disponible | 237 000€ | 1104 | Appt. | T2 | 41.61m2 | 1er | Disponible | 237 000€ | Voir |
| Voir | Disponible | 222 000€ | 1206 | Appt. | T2 | 38.51m2 | 2ème | Disponible | 222 000€ | Voir |
| Voir | Disponible | 226 000€ | 1112 | Appt. | T2 | 40.01m2 | 1er | Disponible | 226 000€ | Voir |