Prix
680 189€  (TVA 20%)
598 000€  (TVA 5.5%)
Type
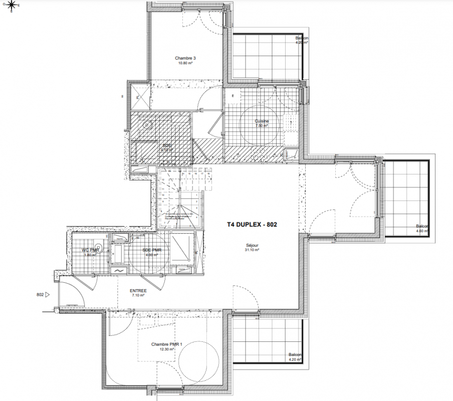
Appt. au 8ème
Pièces
T5
Surface
93 m²
Exposition
Nord-Est
Ville
Saint-Ouen (93400)
Livraison
4ème trimestre 2025
Informations
01 81 80 39 10

Présentation du programme "SO HERITAGE COMMERCE"

De nouveaux logements neufs déjà livrés et bientôt disponibles au coeur du quartier le plus emblématique de Saint-Ouen-sur-Seine : le Village des Athlètes. Vues imprenables sur la Seine, espaces extérieurs privatifs, TVA réduite : une opportunité rare pour habiter ou investir dans un cadre unique. Contactez dès à présent notre équipe commerciale pour être informé de la mise en vente. * Prix donnés à titre indicatif et susceptibles d'évoluer jusqu'à la date officielle de lancement du programme immobilier. Pour toutes informations complémentaires, prenez contact avec nous !

Autres logements T5 du programme "SO HERITAGE COMMERCE"

Disponibilité Prix Genre Pièces Surface Étage
Voir
Disponible
881 516€ Appt. T5 104m2 10ème
DO NOT CLICK