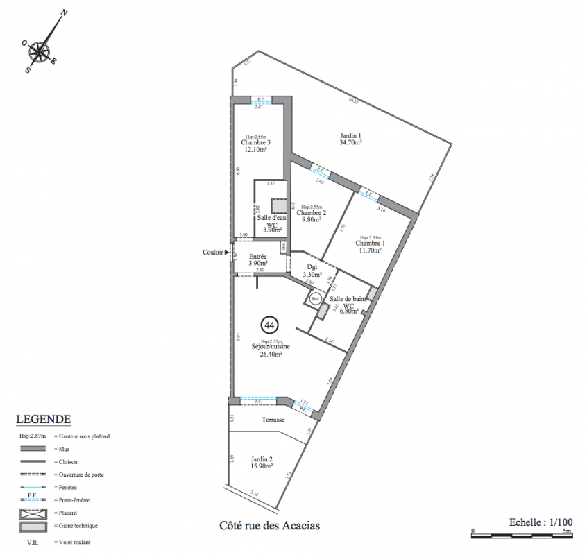
Prix
198 000€
198 000€
Type
Appt. au 0-RDC
Appt. au 0-RDC
Pièces
T4
T4
Surface
77.9 m²
77.9 m²
Exposition
-
-
Ville
Noisy-le-Grand (93160)
Noisy-le-Grand (93160)
Livraison
1er trimestre 2025
1er trimestre 2025
Informations
01 81 80 39 10
01 81 80 39 10
Présentation du programme "Yonis"
Au coeur d¿un quartier résidentiel à l¿environnement urbain. Au coeur du quartier des Richardets avec commerces, services et équipements. À 10 min en voiture de la Gare de Noisy-le-Grand ¿ Mont d¿Est.