Ce lot n’est plus disponible chez VIANOVA ou est vendu.

Vous pouvez revenir dans 24h pour vérifier le stock à jour ou contacter un conseiller Vianova pour vérifier le stock en direct.
Vous pouvez également continuer votre recherche sur notre site « ici ».

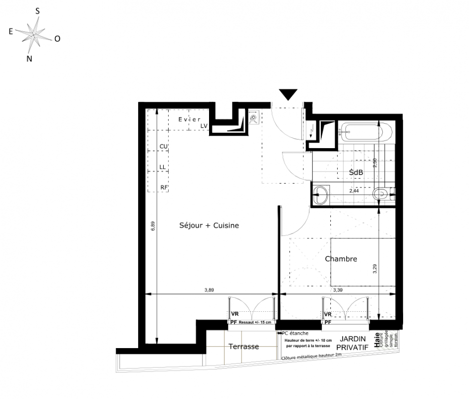
Prix
232 999€
Type
Appt. au 0-RDC
Pièces
T2
Surface
43 m²
Exposition
Nord
Ville
Le Blanc-Mesnil (93150)
Livraison
1er trimestre 2026
Informations
01 81 80 39 10

Présentation du programme "LA RÉSIDENCE DES PETITS PONTS"

Autres logements T2 du programme "LA RÉSIDENCE DES PETITS PONTS"

Pas de logements disponibles
DO NOT CLICK