Prix
196 777€  (TVA 20%)
173 000€  (TVA 5.5%)
Type
Appt. au 1er
Pièces
T2
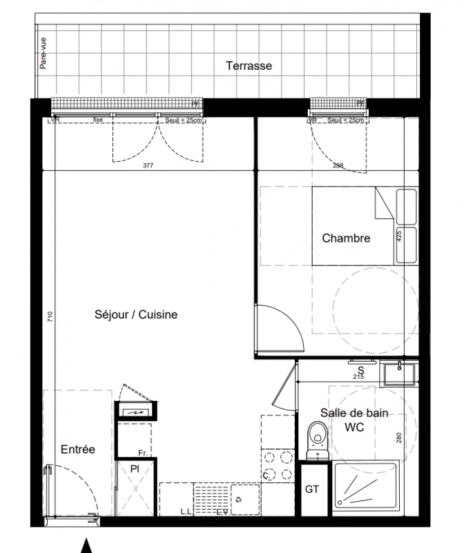
Surface
46.1 m²
Exposition
-
Ville
Drancy (93700)
Livraison
3ème trimestre 2027
Informations
01 81 80 39 10

Présentation du programme "L'essentiel"

FRAIS DE NOTAIRE OFFERTS - TVA 5,5% - BRS RESIDENCE L'essentiel A DRANCY (93)RENDEZ-VOUS DANS NOTRE ESPACE DE VENTE : 133 rue Sadi Carnot à Drancy.Découvrez L'essentiel, notre nouvelle résidence idéalement située dans une commune dynamique et pleine de charme. Drancy bénéficie d'une position stratégique à mi-chemin entre le coeur de Paris et l'aéroport Charles-de-Gaulle.VOTRE CADRE DE VIE :- Plus de 33 hectares d'espaces verts dont le Parc de Ladoucette.- Ville labellisée "Ville Fleurie" depuis 2008 pour un environnement agréable.- Patrimoine riche avec le Château de Ladoucette et la Cité de la Muette.TRANSPORTS ET CONNECTIVITÉ :- RER B (Gare de Drancy) : rejoignez Paris Gare du Nord en seulement 15 minutes.- Desserte complète par bus et tramway pour vos trajets quotidiens.- Futur Grand Paris Express pour une valorisation de votre patrimoine.AVANTAGES FINANCIERS :- Accession à la propriété via le dispositif BRS (Bail Réel Solidaire).- TVA réduite à 5,5% pour l'achat de votre résidence principale.- FRAIS DE NOTAIRE OFFERTS sur votre projet immobilier.Contactez nos conseillers pour découvrir les plans et les conditions d'éligibilité. *Les prix tiennent compte de la TVA réduite. Voir conditions auprès de nos conseillers.

Autres logements T2 du programme "L'essentiel"

Disponibilité Prix Genre Pièces Surface Étage
Voir
Disponible
192 227€ Appt. T2 46.8m2 0-RDC
Voir
Disponible
199 052€ Appt. T2 48.3m2 0-RDC
Voir
Disponible
201 327€ Appt. T2 46.4m2 0-RDC
Voir
Disponible
191 090€ Appt. T2 44.2m2 0-RDC
Voir
Disponible
203 602€ Appt. T2 52.2m2 0-RDC
Voir
Disponible
194 502€ Appt. T2 46.4m2 1er
Voir
Disponible
189 953€ Appt. T2 44.9m2 1er
Voir
Disponible
189 953€ Appt. T2 44.2m2 1er
Voir
Disponible
196 777€ Appt. T2 46.1m2 1er
Voir
Disponible
191 090€ Appt. T2 46.5m2 2ème
Voir
Disponible
193 365€ Appt. T2 44.9m2 2ème
Voir
Disponible
193 365€ Appt. T2 44.2m2 2ème
Voir
Disponible
200 190€ Appt. T2 46.1m2 2ème
Voir
Disponible
200 190€ Appt. T2 46.1m2 2ème
Voir
Disponible
208 152€ Appt. T2 44.8m2 3ème
Voir
Disponible
192 227€ Appt. T2 44.9m2 4ème
Voir
Disponible
199 052€ Appt. T2 44.8m2 4ème
DO NOT CLICK