Prix
642 000€
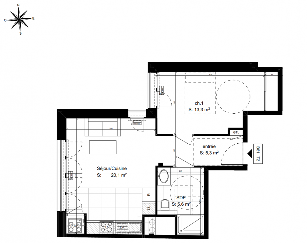
Type
Appt. au 6ème
Pièces
T2
Surface
44.3 m²
Exposition
-
Ville
Paris 18ème (75018)
Livraison
2ème trimestre 2028
Informations
01 81 80 39 10

Présentation du programme "ESPRIT MONTMARTRE"


Parquet
Menuiserie en bois
Carrelage 60x60 cm
Volets roulants motorisés et centralisé
Stores électriques
WC suspendus
Receveur de douche extra plat ou baignoire robinetterie thermostatique
Porte palière anti-effraction équipée d’une serrure 5 points latéraux A2P*
Locaux à vélos

Autres logements T2 du programme "ESPRIT MONTMARTRE"

Disponibilité Prix Genre Pièces Surface Étage
Voir
Disponible
572 000€ Appt. T2 45.1m2 3ème
Voir
Disponible
682 000€ Appt. T2 56.3m2 1er
DO NOT CLICK