331 300€ (TVA 20%)
291 268€ (TVA 5.5%)
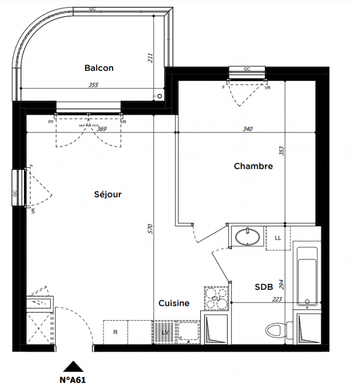
Appt. au 6ème
T2
42 m²
Nord
Fontenay-aux-Roses (92260)
4ème trimestre 2028
01 81 80 39 10
Présentation du programme "Programme neuf Fontenay-aux-Roses (92260)"
NOUVEAU à FONTENAY-AUX-ROSES ! Soyez parmi les premiers à choisir votre logement neuf avec espace extérieur et parking ! Et en plus, devenez propriétaire pour le même prix que votre loyer, grâce à la TVA réduite à 5,5% ! Découvrez nos appartements du 2 au 5 pièces, certains bénéficiant d'une double exposition qui assure un maximum de lumière naturelle. Chaque logement bénéficie d'un espace extérieur, qu'il s'agisse d'un balcon, d'une terrasse ou d'un jardin privatif, parfait pour profiter des beaux jours dès qu'ils arrivent. La résidence est également équipée d'un parking en sous-sol ainsi qu'un local à vélos. L'architecture de la résidence rend hommage au style Art Déco, si caractéristique de Fontenay-aux-Roses, avec un design raffiné et une façade en pierre de qualité. Située au cœur du nouveau quartier des Paradis, elle offre une accessibilité optimale avec l'arrêt de bus "Maison de Quartier" au pied de la résidence, le RER B Fontenay-aux-Roses à seulement 750 mètres et la station Sceaux à 600 mètres. À moins de dix minutes à pied, vous trouverez une crèche, une école élémentaire, un supermarché et de nombreux commerces de proximité. À terme, le quartier accueillera également un terrain de sport et une salle de boxe, participant au dynamisme de ce renouvellement urbain.Fontenay-aux-Roses se distingue par ses nombreux espaces verts et parcs, offrant un cadre de vie à taille humaine où nature et ville cohabitent harmonieusement. La ville séduit par son environnement calme et familial, idéal pour y installer son quotidien.Contactez dès maintenant un de nos conseillers pour découvrir tous nos appartements neufs à Fontenay-aux-Roses et être parmi les premiers à choisir le logement de vos rêves !
Autres logements T2 du programme "Programme neuf Fontenay-aux-Roses (92260)"
| Disponibilité | Prix | No | Genre | Pièces | Surface | Étage | Disponibilité | Prix | ||
|---|---|---|---|---|---|---|---|---|---|---|
| Voir | Disponible | 327 700€ | A01 | Appt. | T2 | 47.46m2 | 0-RDC | Disponible | 327 700€ | Voir |
| Voir | Disponible | 294 600€ | A04 | Appt. | T2 | 41.28m2 | 0-RDC | Disponible | 294 600€ | Voir |
| Voir | Disponible | 327 700€ | A11 | Appt. | T2 | 47.46m2 | 1er | Disponible | 327 700€ | Voir |
| Voir | Disponible | 334 900€ | A21 | Appt. | T2 | 47.46m2 | 2ème | Disponible | 334 900€ | Voir |
| Voir | Disponible | 314 800€ | A41 | Appt. | T2 | 40.58m2 | 4ème | Disponible | 314 800€ | Voir |
| Voir | Disponible | 324 200€ | A51 | Appt. | T2 | 40.58m2 | 5ème | Disponible | 324 200€ | Voir |
| Voir | Disponible | 312 400€ | B03 | Appt. | T2 | 45.05m2 | 0-RDC | Disponible | 312 400€ | Voir |
| Voir | Disponible | 315 900€ | B13 | Appt. | T2 | 45.05m2 | 1er | Disponible | 315 900€ | Voir |
| Voir | Disponible | 321 800€ | B23 | Appt. | T2 | 45.05m2 | 2ème | Disponible | 321 800€ | Voir |
| Voir | Disponible | 314 800€ | B33 | Appt. | T2 | 45.08m2 | 3ème | Disponible | 314 800€ | Voir |
| Voir | Disponible | 337 200€ | B41 | Appt. | T2 | 43.45m2 | 4ème | Disponible | 337 200€ | Voir |
| Voir | Disponible | 340 800€ | B51 | Appt. | T2 | 43.45m2 | 5ème | Disponible | 340 800€ | Voir |
| Voir | Disponible | 346 700€ | B61 | Appt. | T2 | 43.45m2 | 6ème | Disponible | 346 700€ | Voir |
| Voir | Disponible | 352 700€ | B71 | Appt. | T2 | 43.45m2 | 7ème | Disponible | 352 700€ | Voir |