Prix
320 100€
Type
Appt. au 0-RDC
Pièces
T2
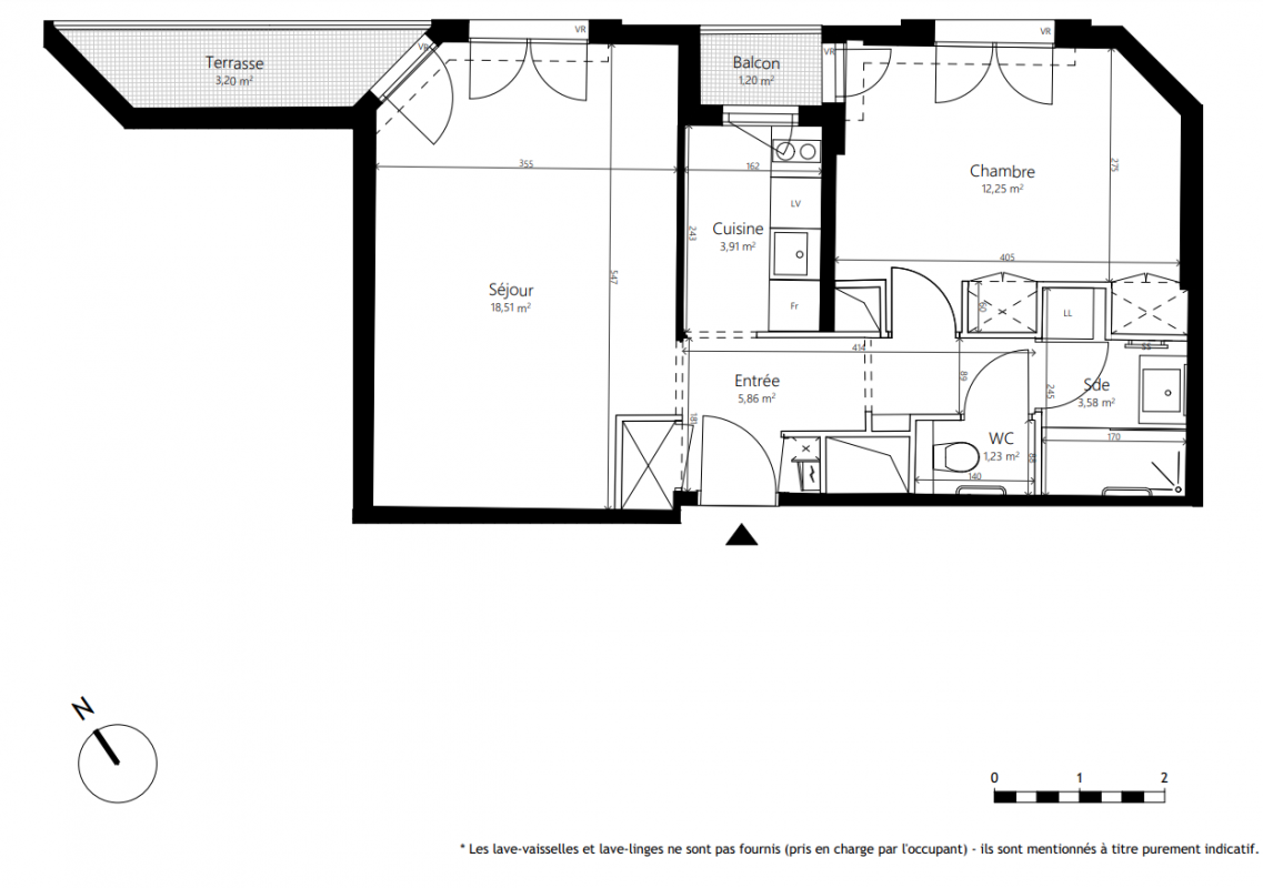
Surface
45.34 m²
Exposition
Nord-Est
Ville
Courbevoie (92400)
Livraison
3ème trimestre 1992
Informations
01 81 80 39 10

Présentation du programme "Les Hespérides de Courbevoie"

Située dans le quartier convoité en coeur de ville de Courbevoie, la résidence "Les Hespérides " offre un environnement qui rend un quotidien agréable et pratique. La rue Sainte-Marie est semi piétonne avec une 15ne de commerces de proximité. Sa situation géographique attire de plus en plus de seniors aisés.

Les berges de Seine récemment aménagées pour les promeneurs sont à moins de 300 m et plusieurs lignes de bus sont accessibles dans un rayon de 400 m.

- Arrêt Bus à 200 m : Mairie et Victor Hugo
- Gare de Courbevoie à 950 m

La copropriété est composée de 74 appartements en R+9 répartis en deux bâtiments, dénommés Ronsard et du Bellay. Ils sont spacieux avec des balcons ou terrasses et certains d'entre eux bénéficient de vues sur la Tour Eiffel et La Défense.

La résidence dispose de nombreux espaces collectifs tels que :

- Un restaurant avec une salle à manger privative pour recevoir ses proches
- Un salon détente
- Un espace TV et bibliothèque
- Un grand salon avec un bar
- Une salle d'animation
- Une salle de sport
- Un jardin paysager

Autres logements T2 du programme "Les Hespérides de Courbevoie"

Disponibilité Prix Genre Pièces Surface Étage
Voir
Disponible
326 100€ Appt. T2 46.19m2 0-RDC
Voir
Disponible
370 500€ Appt. T2 52.98m2 0-RDC
DO NOT CLICK