Prix
320 000€
Type
Appt. au 1er
Pièces
-
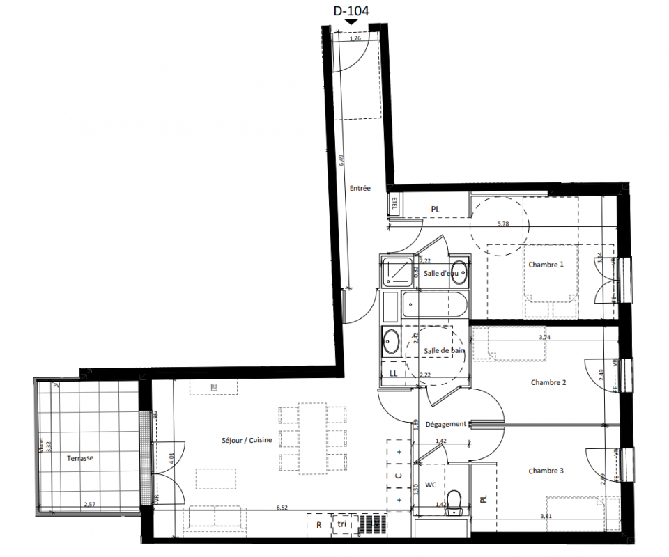
Surface
81.88 m²
Exposition
-
Ville
Montlhéry (91310)
Livraison
1er trimestre 2026
Informations
01 81 80 39 10

Présentation du programme "DOMAINE DE LA TOUR"

Un quartier agréable avec le centre-ville à portée de main.Nichée au coeur d'un environnement naturel verdoyant, la commune propose aujourd'hui la douceur de vivre d'un village et le dynamisme d'une ville bien ancrée dans son époque. Car au-delà de l'image d'Epinal de cette jolie cité médiévale surmontée de sa Tour éponyme, Montlhéry jouit d'une situation géographique stratégique sur l'axe Paris-Orléans. Elle possède un excellent réseau routier avec la proximité immédiate de la N20, de la Francilienne et des autoroutes A6 et A10. Ainsi, en une vingtaine de minutes en voiture vous accédez à Paris et à l'aéroport de Paris-Orly mais aussi aux grands bassins d'activités tels que Massy et sa gare TGV, Rungis ou encore la ZAC de la Croix Blanche à Sainte-Geneviève-des-Bois. La gare RER C de Saint-Michel-sur-Orge à 10 minutes en voiture vous permet de rejoindre Bibliothèque François-Mitterand (métro 14) en 27 min.

Autres logements - du programme "DOMAINE DE LA TOUR"

Disponibilité Prix Genre Pièces Surface Étage
Voir
Optionné
208 000€ Appt. - 40.69m2 2ème
Voir
Disponible
325 000€ Appt. - 85.11m2 3ème
DO NOT CLICK