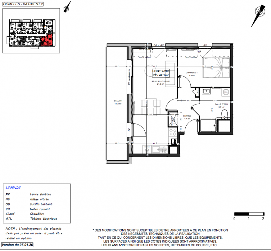
221 000€
Appt. au 2ème
T2
42.1 m²
Sud
Cayeux-sur-Mer (80410)
4ème trimestre 2028
01 81 80 39 10
Présentation du programme "L'ORÉE DE LA BAIE"
Idéalement située en front de mer, la résidence s’intègre harmonieusement dans son environnement naturel et propose 58 appartements du 2 au 4 pièces, tous prolongés par un espace extérieur privatif : terrasse, balcon ou jardin. Chaque logement bénéficie d’un agencement optimisé, où vous pourrez profiter de vues dégagées sur la mer, les dunes ou l’espace paysager intérieur.
Inspirée de l’architecture locale, « L’Orée de la Baie » allie élégance, confort et durabilité : matériaux nobles, prestations contemporaines, sécurité renforcée, stationnements privatifs, local à vélos sécurisé.
Vivre à « L’Orée de la Baie », c’est choisir la sérénité d’un cadre naturel d’exception, la proximité immédiate de la plage et la rareté d’un investissement pérenne dans une station balnéaire recherchée. Saisissez l’opportunité de devenir propriétaire d’un bien unique, pensé pour votre bien-être et votre tranquillité, au sein d’une résidence à l’identité forte.
Entre bord de mer relaxant et cœur de ville charmant, soyez les premiers à choisir « L’Orée de la Baie » en appelant VINCI Immobilier au 01 81 80 39 10 ou sur ...
Autres logements T2 du programme "L'ORÉE DE LA BAIE"
| Disponibilité | Prix | No | Genre | Pièces | Surface | Étage | Disponibilité | Prix | ||
|---|---|---|---|---|---|---|---|---|---|---|
| Voir | Disponible | 219 000€ | 1-002 | Appt. | T2 | 42.2m2 | 0-RDC | Disponible | 219 000€ | Voir |
| Voir | Disponible | 219 000€ | 1-003 | Appt. | T2 | 42.2m2 | 0-RDC | Disponible | 219 000€ | Voir |
| Voir | Disponible | 194 000€ | 1-101 | Appt. | T2 | 38.6m2 | 1er | Disponible | 194 000€ | Voir |
| Voir | Disponible | 220 000€ | 1-103 | Appt. | T2 | 42.8m2 | 1er | Disponible | 220 000€ | Voir |
| Voir | Disponible | 220 000€ | 1-104 | Appt. | T2 | 43.1m2 | 1er | Disponible | 220 000€ | Voir |
| Voir | Disponible | 223 000€ | 1-105 | Appt. | T2 | 43.1m2 | 1er | Disponible | 223 000€ | Voir |
| Voir | Disponible | 224 000€ | 1-106 | Appt. | T2 | 43.5m2 | 1er | Disponible | 224 000€ | Voir |
| Voir | Disponible | 196 000€ | 1-201 | Appt. | T2 | 38.6m2 | 2ème | Disponible | 196 000€ | Voir |
| Voir | Disponible | 220 000€ | 2-001 | Appt. | T2 | 42.9m2 | 0-RDC | Disponible | 220 000€ | Voir |
| Voir | Disponible | 216 000€ | 2-002 | Appt. | T2 | 42.2m2 | 0-RDC | Disponible | 216 000€ | Voir |
| Voir | Disponible | 216 000€ | 2-003 | Appt. | T2 | 42.2m2 | 0-RDC | Disponible | 216 000€ | Voir |
| Voir | Disponible | 195 000€ | 2-101 | Appt. | T2 | 41.5m2 | 1er | Disponible | 195 000€ | Voir |
| Voir | Disponible | 217 000€ | 2-106 | Appt. | T2 | 42.1m2 | 1er | Disponible | 217 000€ | Voir |
| Voir | Disponible | 199 000€ | 2-201 | Appt. | T2 | 41.5m2 | 2ème | Disponible | 199 000€ | Voir |
| Voir | Disponible | 219 000€ | 2-205 | Appt. | T2 | 41.4m2 | 2ème | Disponible | 219 000€ | Voir |
| Voir | Disponible | 220 000€ | 4-101 | Appt. | T2 | 47.9m2 | 1er | Disponible | 220 000€ | Voir |
| Voir | Disponible | 223 000€ | 4-201 | Appt. | T2 | 47.9m2 | 2ème | Disponible | 223 000€ | Voir |