Prix
147 800€
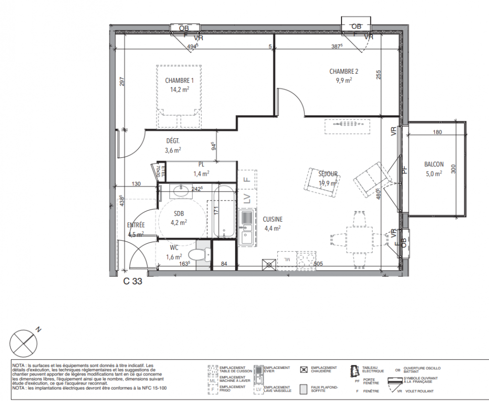
Type
Appt. au 3ème
Pièces
T3
Surface
63.7 m²
Exposition
-
Ville
Douai (59500)
Livraison
4ème trimestre 2025
Informations
01 81 80 39 10

Présentation du programme "Le Gayant"

Une parenthèse de verdure
Linselles s’étend dans la campagne de la Métropole Européenne de Lille (MEL). Elle s’affiche à la lisière de la capitale du Nord, à proximité des communes cotées de Croix, Bondues et Mouvaux comme une parenthèse verte. Prisée, résolument tournée vers la nature avec de nombreux espaces verts et la pleine campagne pour paysage, Linselles bénéficie de la proximité des grands bassins d’emploi de la métropole. Idéalement desservie, elle se situe à seulement 20 min de Lille.

Vivre en coeur de ville
Le quartier de "Renaissance" agréablement jalonné d'espaces verts offre un cadre de vie résidentiel au coeur de Linselles. Les maisons datant du XVIIIe siècle marquent à jamais la ville qui a su préserver son caractère authentique. Proche des commodités, des commerces, des restaurants et des écoles, le secteur est desservi par plusieurs lignes de bus.

Autres logements T3 du programme "Le Gayant"

Pas de logements disponibles
DO NOT CLICK