201 371€ (TVA 20%)
184 590€ (TVA 10%)
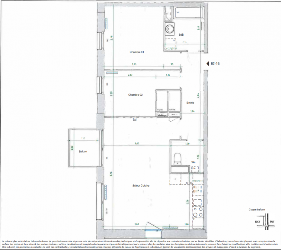
Appt. au 1er
T3
64.05 m²
Nord
Croix (59170)
2ème trimestre 2026
01 81 80 39 10
Présentation du programme "LE BORD COTE"
Située au nord-est de Lille, Croix est une adresse résidentielle prisée qui séduit par son cadre de vie élégant et son dynamisme économique, porté notamment par les enseignes de l’Association Familiale Mulliez, historiquement ancrée sur le territoire. Au cœur d’un quartier en plein essor, la résidence s’inscrit dans un environnement vivant et mixte, où se côtoient appartements, bureaux, activités et une guinguette au bord de l’eau. Le Bord-Côte profite d’un accès piéton immédiat au centre-ville et aux Halles de la Maillerie, à seulement une minute de la résidence. La desserte est renforcée par une connexion directe vers Lille, assurée par la ligne 2 du métro et le tramway R, tous deux situés dans un rayon de 700 mètres.
Autres logements T3 du programme "LE BORD COTE"
| Disponibilité | Prix | No | Genre | Pièces | Surface | Étage | Disponibilité | Prix | ||
|---|---|---|---|---|---|---|---|---|---|---|
| Voir | Disponible | 195 873€ | B1-12 | Appt. | T3 | 60.5m2 | 1er | Disponible | 195 873€ | Voir |
| Voir | Disponible | 199 309€ | B1-23 | Appt. | T3 | 60.5m2 | 2ème | Disponible | 199 309€ | Voir |
| Voir | Optionné | 198 278€ | B2-36 | Appt. | T3 | 64.05m2 | 3ème | Optionné Mais pas encore vendu 😉 | 198 278€ | Voir |