Prix
294 000€
Type
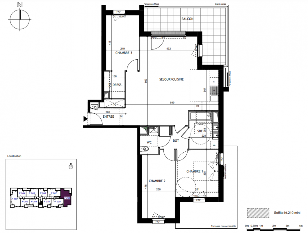
Appt. au 2ème
Pièces
T4
Surface
91.11 m²
Exposition
Est
Ville
Saran (45770)
Livraison
4ème trimestre 2024
Informations
01 81 80 39 10

Présentation du programme "ORGANDI"

A la fois, lieu de vie, de travail, de rencontres et de partage, le quartier QUELLE (re)prendra vie autour d’un bâtiment central de 40 000m². Surnommé « le paquebot », ce symbole du passé industriel du site sera conservé et réhabilité pour devenir le centre animé du futur quartier. Il abritera en effet des commerces, des locaux d’activités, des bureaux, une crèche, un centre médical, un hôtel ou encore des logements. Il servira également de lieu de stationnement pour l’ensemble des habitants et usagers du quartier.

Autres logements T4 du programme "ORGANDI"

Disponibilité Prix Genre Pièces Surface Étage
Voir
Disponible
284 000€ Appt. T4 91.1m2 0-RDC
Voir
Disponible
290 000€ Appt. T4 91.1m2 1er
DO NOT CLICK