Prix
357 000€
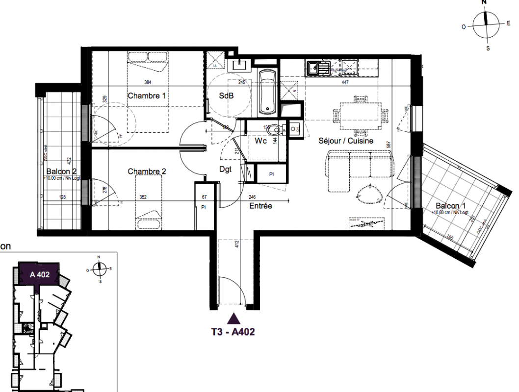
Type
Appt. au 4ème
Pièces
T3
Surface
65.7 m²
Exposition
Est
Ville
Saint-Malo (35400)
Livraison
1er trimestre 2025
Informations
01 81 80 39 10

Présentation du programme "PORT VAUBAN"

DISPONIBLE IMMÉDIATEMENT - DERNIÈRES OPPORTUNITÉS. PORT VAUBAN – Vivez une nouvelle perspective sur Saint-Malo. Appartement témoin disponible à la visite sur site : prenez rendez-vous dès maintenant ! À deux pas des commerces, services et commodités du quotidien. Appartements lumineux 3 et 4 pièces avec balcon ou terrasse. Vues dégagées sur la ville et ses paysages lointains. Au cœur d’un quartier en plein renouveau. Espaces verts paysagers : jardin central. Résidence sécurisée avec parkings disponibles à la vente. Éligible au nouveau dispositif Jeanbrun (statut du bailleur privé) + au dispositif LLI.

Autres logements T3 du programme "PORT VAUBAN"

Disponibilité Prix Genre Pièces Surface Étage
Voir
Disponible
315 000€ Appt. T3 61.1m2 3ème
DO NOT CLICK