Ce lot n’est plus disponible chez VIANOVA ou est vendu.

Vous pouvez revenir dans 24h pour vérifier le stock à jour ou contacter un conseiller Vianova pour vérifier le stock en direct.
Vous pouvez également continuer votre recherche sur notre site « ici ».

Prix
199 900€
Type
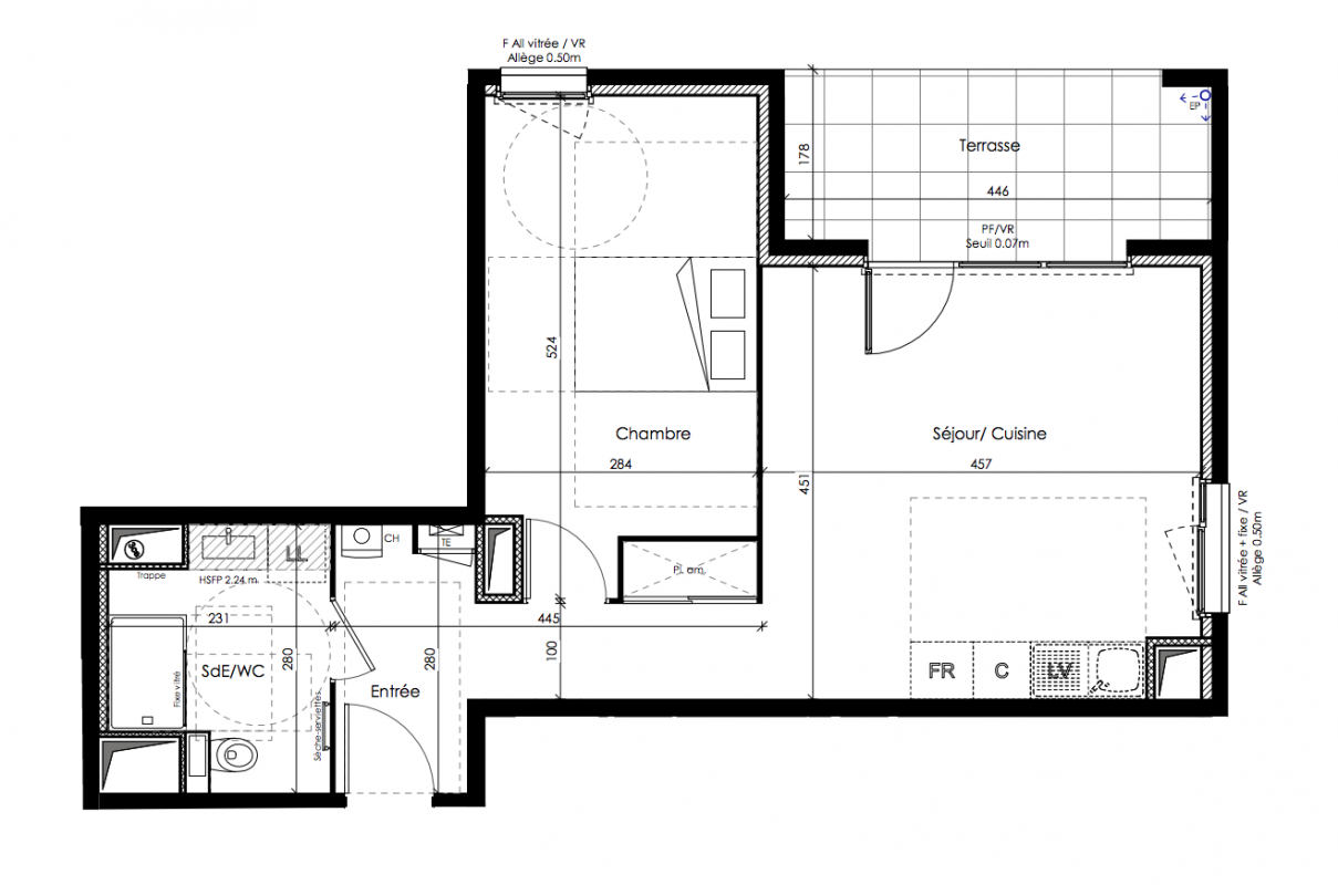
Appt. au 0-RDC
Pièces
T2
Surface
47.1 m²
Exposition
Nord
Ville
Clermont-Ferrand (63000)
Livraison
2ème trimestre 2024
Informations
01 81 80 39 10

Présentation du programme "Pluri'elles (tranche 2) - Rc"

DERNIER LOT LIVRÉ LE 4 JUILLET 2024VOIR VISITES VIRTUELLES D'UN T2, T3 ET D'UN T4Vous souhaitez y habiter ? Vérifiez votre éligibilité au PTZ avec nos équipes !LA VILLEClermont-Ferrand, commune attractive et dynamique au positionnement géographique stratégique (véritable carrefour commercial entre Bordeaux-Lyon et Paris-Montpellier). Elle offre à ses habitants une qualité de vie urbaine au cœur d’un paysage unique : la chaîne des Puys, classée au patrimoine mondial de l’UNESCO. Ville en plein essor, elle bénéficie de nombreux pôles de compétitivité et représente un bassin de 200 000 emplois. LE QUARTIER & SES COMMODITÉSUne résidence située au nord-est de la ville, à 3km de l’hypercentre, dans le quartier Montferrand. Le quartier République, nouveau cœur de ville tourné vers l’avenir, est à deux pas. Les services et commerces sont accessibles à pied : supermarchés, espaces santé, restaurants, infrastructures scolaires, culturelles et sportives… Le CHU d’Estaing et l’UFR d’Odontologie sont à 800m.ACCÈS & TRANSPORTSUne très bonne accessibilité : ligne A du tramway à 2.4km (arrêt "Delille Montlosier") et bus (lignes 7, 12, 35 et 36) à 400m, gare SNCF à 2km (pour rejoindre Lyon en 2h20 et Paris en 3h25), station de vélo à 300m, aéroport de Clermont-Ferrand à 4.5km, axes routiers à proximité (N89, A71/A75).LA RÉSIDENCEUne résidence contemporaine à taille humaine dotée d’un bel espace vert partagé et des appartements offrant des espaces extérieurs confortables dont quelques jardins privatifs et tous dotés d'une cuisine équipée.LES + ENVIRONNEMENTAUXL’emplacement de la résidence est propice à une mobilité décarbonée. En effet, il répond aux principaux critères de la « ville du quart d’heure » qui offre aux futurs habitants un accès facilité à toutes les commodités en moins de 15 min à pied ou 5 min à vélo (écoles, commerces, divertissement, santé). L’aménagement du terrain permettra de réorganiser les sols. Ainsi les surfaces actuellement imperméables et minérales laisseront place à de grands espaces verts et aux revêtements végétalisés sur les toitures. C’est une démarche qui favorise les îlots de fraîcheur et la biodiversité urbaine. Enfin, à la livraison, les résidents seront sensibilisés aux bonnes pratiques environnementales.

Autres logements T2 du programme "Pluri'elles (tranche 2) - Rc"

Pas de logements disponibles
DO NOT CLICK