89 400€
Appt. au 1er
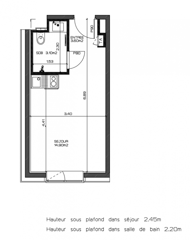
Studio
21.99 m²
Sud
Grenoble (38000)
1er trimestre 2025
01 81 80 39 10
Présentation du programme "Résidence Étudiante Oxygène Grenoble - Nomad Campus"
Descriptif résidenceLa résidence Nomad Campus – Oxygène, anciennement Cardinal Campus, est une résidence étudiante moderne située à Grenoble, au cœur du quartier de la Presqu’île.Elle propose environ 112 logements meublés, du studio au T2, conçus pour offrir confort et fonctionnalité.Chaque appartement dispose d’une kitchenette équipée, d’un espace bureau et d’une salle de bain privative.La résidence se trouve à proximité immédiate de l’Université Grenoble Alpes, de Grenoble École de Management, de Grenoble INP et de plusieurs écoles et instituts.Les transports en commun, dont le tramway ligne B, sont accessibles au pied de la résidence.Les résidents bénéficient d’espaces communs conviviaux : coworking, salle de sport, laverie et local vélos.Un emplacement stratégique idéal pour vivre pleinement la vie étudiante grenobloise.Descriptif gestionnaireNomad Campus est l’opérateur spécialisé dans la gestion et l’exploitation de résidences étudiantes du Groupe Cardinal, acteur immobilier indépendant fondé en 2001.Active sur le logement étudiant depuis 2008, Nomad Campus assure la gestion locative, le pilotage opérationnel et l’optimisation de la performance des résidences, pour le compte d’acteurs publics et privés.Adossée à un groupe réalisant environ 100 M€ de chiffre d’affaires et réunissant plus de 70 collaborateurs, la marque bénéficie d’une expertise immobilière intégrée couvrant la promotion, la gestion et l’investissement.Nomad Campus développe et exploite des résidences dans des zones à forte demande étudiante, notamment à Lille, Le Havre, Clermont-Ferrand et en Île-de-France.Points clésOpérateur dédié au logement étudiantExpérience éprouvée en exploitation depuis plus de 15 ansGestion déléguée et professionnaliséeAdossement à un groupe solide et structuréVision long terme de la performance des actifsUn gestionnaire de référence pour sécuriser et pérenniser les investissements en résidences étudiantesExtrait du bail commercial1. Durée du bailBail renouvelé pour 9 ans, à compter du 1er décembre 2025.Le preneur conserve la faculté de résiliation triennale (tous les 3 ans).2. Loyer et paiementPaiement mensuel, à terme échu.À régler dans les 10 premiers jours suivant le mois écoulé.Paiement par virement bancaire au bailleur.3. Révision / indexation du loyerPremière révision : 1er septembre 2028.Puis révision triennale à la date anniversaire du bail.Indexation basée sur l’Indice des Loyers Commerciaux (ILC – INSEE).L’indice de base est celui publié...
Autres logements Studio du programme "Résidence Étudiante Oxygène Grenoble - Nomad Campus"
| Disponibilité | Prix | No | Genre | Pièces | Surface | Étage | Disponibilité | Prix | ||
|---|---|---|---|---|---|---|---|---|---|---|
| Voir | Disponible | 113 300€ | 906 | Appt. | Studio | 25m2 | 9ème | Disponible | 113 300€ | Voir |
| Voir | Disponible | 87 700€ | 205 | Appt. | Studio | 22.14m2 | 2ème | Disponible | 87 700€ | Voir |
| Voir | Disponible | 90 100€ | 503 | Appt. | Studio | 21.96m2 | 5ème | Disponible | 90 100€ | Voir |