Prix
325 500€
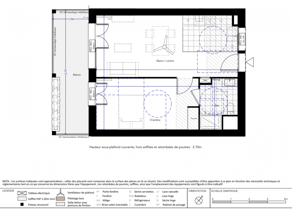
Type
Appt. au 2ème
Pièces
T2
Surface
46.2 m²
Exposition
-
Ville
Ferney-Voltaire (01210)
Livraison
4ème trimestre 2027
Informations
01 81 80 39 10

Présentation du programme "Ilot des Lumières"

Autres logements T2 du programme "Ilot des Lumières"

Disponibilité Prix Genre Pièces Surface Étage
Voir
Optionné
323 000€ Appt. T2 45.9m2 2ème
Voir
Disponible
323 000€ Appt. T2 45.9m2 3ème
Voir
Disponible
328 000€ Appt. T2 46.2m2 3ème
Voir
Optionné
317 500€ Appt. T2 45.9m2 4ème
DO NOT CLICK